direct naar inhoud van Ruimtelijke onderbouwing
Plan: Aalbekerweg 73 te Hulsberg
Status: ontwerp
Plantype: omgevingsvergunning
IMRO-idn: NL.IMRO.1954.OVaalbekerweg73-ON01

Ruimtelijke onderbouwing

Hoofdstuk 1 Inleiding

Het voornemen is om het bestaande beeldbepalende pand aan de Aalbekerweg 73 te Hulsberg te slopen. Vervolgens wordt voorzien in herbouw in gewijzigde opzet ten behoeve van in totaal 6 wooneenheden.

afbeelding "i_NL.IMRO.1954.OVaalbekerweg73-ON01_0001.png"

Uitsnede topografische kaart met aanduiding projectlocatie

Vanwege het herbouwen buiten het op grond van het bestemmingsplan 'Kleine Kernen' vastgelegd bouwvlak, én het toevoegen van één wooneenheid, is het bouwplan strijdig met het bestemmingsplan. De gemeente Beekdaelen heeft middels brief d.d. 21 september 2023 kenbaar gemaakt principemedewerking te willen verlenen aan het voornemen. Betreffende brief is bijgevoegd als Bijlage 1.

Voor het bouwplan is op 8 december 2023 een vergunningaanvraag ingediend. Het plan is vergunbaar met het doorlopen van een uitgebreide voorbereidingsprocedure ('projectafwijkingsbesluit'). Ten behoeve van de afwijkingsprocedure dient een ruimtelijke onderbouwing te worden aangeleverd. Voorliggend document voorziet daarin.

Hoofdstuk 2 Projectlocatie en project

In dit hoofdstuk worden de projectlocatie, de huidige situatie en het project beschreven. Tevens wordt in dit hoofdstuk ingegaan op de ruimtelijke effecten van het project.

2.1 Ligging projectlocatie

De projectlocatie is gelegen aan de Aalbekerweg 73 te Aalbeek bij Hulsberg. De Aalbekerweg betreft de provinciale weg N298 tussen Hulsberg en Nuth.

afbeelding "i_NL.IMRO.1954.OVaalbekerweg73-ON01_0002.png"

Luchtfoto met aanduiding projectlocatie

Kadastraal is de locatie bekend als gemeente Nuth – sectie M – nummer 78.

afbeelding "i_NL.IMRO.1954.OVaalbekerweg73-ON01_0003.png" Kadastrale kaart met projectlocatie

De bestaande situatie wordt weergegeven aan de hand van de volgende foto's.

afbeelding "i_NL.IMRO.1954.OVaalbekerweg73-ON01_0004.png"

afbeelding "i_NL.IMRO.1954.OVaalbekerweg73-ON01_0005.png" Luchtfoto's bestaande situatie

afbeelding "i_NL.IMRO.1954.OVaalbekerweg73-ON01_0006.png"

afbeelding "i_NL.IMRO.1954.OVaalbekerweg73-ON01_0007.png"

afbeelding "i_NL.IMRO.1954.OVaalbekerweg73-ON01_0008.png"

afbeelding "i_NL.IMRO.1954.OVaalbekerweg73-ON01_0009.png" Foto's bestaande situatie (Streetview)

Ter plekke van het projectgebied is het restant aanwezig van een van origine aldaar gevestigde carréboerderij. Het noordelijke deel van dit carré is omstreeks 1970 gesloopt alwaar nieuwbouw is gepleegd (huisnummer 75).

afbeelding "i_NL.IMRO.1954.OVaalbekerweg73-ON01_0010.png"

Oorspronkelijk volume carréboerderij

afbeelding "i_NL.IMRO.1954.OVaalbekerweg73-ON01_0011.png"

Situatietekening bestaande toestand

afbeelding "i_NL.IMRO.1954.OVaalbekerweg73-ON01_0012.png" Model bestaande situatie

2.2 Project

Het voornemen bestaat om de bestaande hoeve te slopen en te herbouwen in het oorspronkelijke volume. Daarbij zal de bouwmassa gewijzigd op het perceel worden gesitueerd.

afbeelding "i_NL.IMRO.1954.OVaalbekerweg73-ON01_0013.png"

Situatietekening herbouw

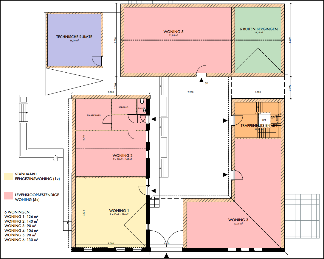
Binnen de bouwvolume zullen in totaal zes wooneenheden worden gerealiseerd. Het oppervlak van deze eenheden varieert tussen de 90 en 130 m². Sprake is van 5 levensloopbestendige wooneenheden en 1 standaard gezinswoning.

afbeelding "i_NL.IMRO.1954.OVaalbekerweg73-ON01_0014.png"

afbeelding "i_NL.IMRO.1954.OVaalbekerweg73-ON01_0015.png" Plattegronden

 

Bij de herbouw zal het vakwerk en de spanten worden verplaatst met hergebruik van de bouwmaterialen. Qua materialisatie wordt gepoogd de gevels te laten aansluiten op het oorspronkelijke aangezicht. Het sierstucwerk van latere fase komt hiermee te vervallen.

2.3 Ruimtelijk-visuele effecten

Ter plekke van onderhavig projectgebied is sprake van reeds langere tijd leegstaande en daardoor versneld in verval rakende beeldbepalende bebouwing. Vanwege deze situatie kent het straatbeeld ter hoogte van het projectgebied een wat verloederde uitstraling.

Voorliggend planvoornemen voorziet in het herbouwen van de 200 jaar oude hoeve. De huidige, te slopen bebouwing betreft slechts een deel van het oorspronkelijke volume. Ten behoeve van het planvoornemen is een bouwhistorisch rapport opgesteld waarin de geschiedenis van de oorspronkelijke hoeve is beschreven. Het bouwhistorische rapport is bijgevoegd als Bijlage 2.

Mede door het hergebruiken/verplaatsen van de oorspronkelijke spanten kan het oude volume worden teruggebouwd op een nieuwe locatie. De materialisatie van de gevels zal aansluiten op het oorspronkelijk aangezicht van de hoeve.

De huidige bebouwing ligt ongunstig in de erfgrens en en vlak aan de straat. Het doel van het project is om het voormalige bebouwingsbeeld ter plekke terug te brengen en daarmee een kwalitatieve verbetering te bewerkstelligen.

afbeelding "i_NL.IMRO.1954.OVaalbekerweg73-ON01_0016.png"

Impressies project

Vanwege de aanduiding als beeldbepalend pand in het geldende bestemmingsplan en de van toepassing zijnde dubbelbestemming 'Waarde – Cultuurhistorie' is het planvoornemen meermaals voorgelegd aan, en besproken met, de Monumentencommissie. Eerdere plannen (zie zagen op herbouw ten behoeve van twee woningen) zijn besproken op op 4 juli 2018 (inclusief bezichtiging ter plaatse) en 19 juni 2019, op basis waarvan destijds de commissie positief heeft geadviseerd (zie Bijlage 3).

Het huidig voorliggende plan is eveneens voorgelegd aan de Monumentencommissie, op basis waarvan kenbaar is gemaakt dat deze commissie akkoord is met de hoofdopzet en dat bij de verdere uitwerking aandacht dient te worden besteed aan de tuininrichting, landschappelijke inpassing en het parkeren.

Gelet op vorenstaande mag worden geconcludeerd dat de ruimtelijk-visuele effecten die optreden ten gevolge van voorliggend project aanvaardbaar mogen worden geacht.

Hoofdstuk 3 Planologisch-juridische situatie

3.1 Vigerend bestemmingsplan 'Kleine kernen'

Ter plekke van onderhavige projectlocatie is het bestemmingsplan 'Kleine kernen', vastgesteld door de raad van de gemeente Nuth op 5 december 2009, van kracht.

Op grond van dit bestemmingsplan is de locatie grotendeels bestemd tot 'Wonen'. In casu is ten hoogte één woning met bijgebouwen toegestaan. Vanwege het beeldbepalende karakter van het pand is aan het bouwvlak tevens de dubbelbestemming 'Waarde – Cultuurhistorie' toegekend. Een beperkt gedeelte van het perceel is bestemd tot 'Agrarisch' met de aanduiding 'tuin'. Het gebruik van deze gronden als tuin is toegestaan.

Ten laatste is de gebiedsaanduiding 'veiligheidszone - vervoer gevaarlijke stoffen 2' van toepassing. Binnen deze veiligheidszone geldt een verantwoordingsplicht voor het groepsrisico die uitsluitend de beschouwing en verantwoording van de gevolgen van het voorgenomen besluit voor de mogelijkheden van rampbestrijding en de zelfredzaamheid van de mensen omvat.

afbeelding "i_NL.IMRO.1954.OVaalbekerweg73-ON01_0017.png"

Uitsnede bestemmingsplankaart met aanduiding projectlocatie

3.2 Strijdigheid met bestemmingsplan

Onderhavig voornemen is strijdig met de bouwregels van het bestemmingsplan 'Kleine kernen'.

Vooraleerst is de herbouw van de bebouwing deels beoogd buiten het bouwvlak. Hoewel het bestemmingsplan een binnenplanse afwijkingsmogelijkheid biedt om omgevingsvergunning te verlenen voor het overschrijden van de bouwgrenzen respectievelijk het vergroten van het bouwvlak, kan strikt bezien niet worden voldaan aan de daarbij gestelde voorwaarden in artikel 31.11 van het bestemmingsplan.

Daarnaast het is het project strijdig met het bestemmingsplan voor wat betreft het toevoegen van vijf extra woningen. Hoewel (ook) hiervoor een binnenplanse afwijkingsmogelijkheid wordt geboden, kan ook aan die hieraan gestelde voorwaarden zoals gesteld in artikel 31.14 van het bestemmingsplan strikt gezien niet worden voldaan.

De gemeente heeft kenbaar gemaakt in principe medewerking te willen verlenen aan de sloop van het bestaande beeldbepalende pand en de herbouw ten behoeve van in totaal zes wooneenheden. Ten behoeve van het bouwplan wordt een uitgebreide voorbereidingsprocedure doorlopen (projectafwijkingsbesluit). In dat verband dient voorliggende ruimtelijke onderbouwing te worden opgesteld.

Hoofdstuk 4 Beleid

In dit hoofdstuk wordt ingegaan op het Rijks-, provinciale, regionale en gemeentelijke beleid. Het Rijksbeleid wordt besproken aan de hand van de Nationale Omgevingsvisie (NOVI). Voor de beschrijving van het provinciale beleid en regelgeving is gebruik gemaakt van de geconsolideerde versies van de Omgevingsvisie POL2014 en de Omgevingsverordening Limburg 2014. Voor wat betreft het regionale beleid wordt ingegaan op de Structuurvisie Wonen Zuid-Limburg (SVWZL) en de Structuurvisie Ruimtelijke Economie Zuid-Limburg (SVREZL). Het gemeentelijke beleid is ontleend aan het beleidsdocument 'Ons Beekdaelen maken we samen' en de 'Nota Ruimelijke Kwaliteit'.

4.1 Rijksbeleid

4.1.1 Nationale Omgevingsvisie (NOVI)

Op 11 september 2020 is de Nationale Omgevingsvisie (NOVI) vastgesteld. In de NOVI staat de langetermijnvisie van het Rijk op de toekomstige inrichting en ontwikkeling van de leefomgeving in Nederland. Het versterken van de omgevingskwaliteit staat in de NOVI centraal, waarmee wordt bedoeld dat alle plannen met oog voor de natuur, gezondheid, milieu en duurzaamheid gemaakt moeten worden.

In de NOVI wordt gebruik gemaakt van afwegingsprincipes bij het maken van keuzes:

  • Combinaties van functies gaan voor enkelvoudige functies,
  • Kenmerken en identiteit van een gebied staan centraal, en
  • Afwentelen wordt voorkomen.

In de NOVI zijn de volgende belangrijste keuzes opgenomen:

  • een klimaatbestendige inrichting van Nederland. Dat betekent dat Nederland zodanig wordt ingericht dat het land de klimaatveranderingen aankan. Daarvoor is nodig dat functies meer in evenwicht met natuurlijke systemen (bodem en water) worden ingepast;
  • de verandering van de energievoorziening. Bij de inpassing van duurzame energie dient oog te zijn voor omgevingskwaliteit;
  • de overgang naar een circulaire economie, waarbij Nederland tegelijk goed kan blijven concurreren en een aantrekkelijk vestigingsklimaat kan bieden;
  • de ontwikkeling van het Stedelijk Netwerk Nederland, waarmee wordt gestuurd op een goed bereikbaar netwerk van steden;
  • het bij elkaar plaatsen van zogenaamde logistieke functies (bijvoorbeeld distributiecentra, datacenters) om hiermee de openheid en de kwaliteit van het landschap te behouden;
  • het toekomstbestendig maken van het landelijk gebied in goed evenwicht met de natuur en landschap.

Daarbij wordt bijvoorbeeld gewerkt aan de overgang naar de kringlooplandbouw zodat gebruik van de grond meer wordt afgestemd op de natuurlijke water- en bodemsystemen. Ter uitvoering van de in de NOVI gemaakte keuzes is een Uitvoeringsagenda opgesteld. Daarin staat hoe samen met medeoverheden en de samenleving uitvoering zal moeten worden gegeven aan de NOVI. In de Uitvoeringsagenda staat een overzicht van instrumenten voor de verschillende beleidskeuzes uit de NOVI. De NOVI wordt uitgewerkt in algemene rijksregels, bestuurlijke afspraken, beleidsprogramma's, inzet van financiële middelen en kennisontwikkeling. Daarnaast wordt gebiedsgericht gewerkt met Omgevingsagenda's en NOVI-gebieden.

In de NOVI wordt ten aanzien van Zuid Limburg aangegeven dat de regio sociaaleconomische en fysieke opgaven heeft die van betekenis zijn in een bijzondere grensoverschrijdende omgeving (met regio's rond het Duitse Aken, het Waalse Luik en het Vlaamse Hasselt). De opgaven die te maken hebben met bereikbaarheid (drielandentrein), circulaire economie (Chemelot) en bevolkingsdaling (voormalige mijnstreek) zijn stuk voor stuk fors en vragen alle drie internationale afstemming en overleg. Een rijksrol is daarbij noodzakelijk.

4.1.2 Besluit algemene regels ruimtelijke ordening (Barro)

Het Barro voorziet in de juridische borging van het nationale ruimtelijke beleid. Het bevat regels die de beleidsruimte van andere overheden ten aanzien van de inhoud van ruimtelijke plannen inperken, daar waar nationale belangen dat noodzakelijk maken. Navolgende onderwerpen met nationaal belang zijn opgenomen in het Barro en de eerste aanvulling (Stb. 2012, nr. 388):

  • project Mainportontwikkeling Rotterdam;
  • kustfundament en de daarbuiten gelegen primaire waterkeringen;
  • grote rivieren en rijksvaarwegen en de veiligheid daarom heen;
  • toekomstige rivierverruiming van de Maastakken;
  • Waddenzee en Waddengebied, en IJsselmeergebied;
  • verstedelijking in het IJsselmeer;
  • defensie;
  • erfgoederen van uitzonderlijke universele waarde;
  • hoofdwegen en landelijke spoorwegen;
  • elektriciteitsvoorziening;
  • ecologische hoofdstructuur.
4.1.3 Regeling algemene regels ruimteljike ordening (Rarro)

Naast het Barro is ook de Regeling algemene regels ruimtelijke ordening (Rarro) in werking getreden. In het Barro is bepaald dat bij ministeriële regeling verschillende militaire terreinen, gebieden, objecten en zones worden aangewezen, waar gemeenten bij de vaststelling van bestemmingsplannen rekening mee moeten houden. In de Rarro wordt daar uitvoering aan gegeven.

4.1.4 Conclusie Rijksbeleid

De beoogde planontwikkeling levert geen strijd op met de Nationale Omgevingsvisie, het Barro en de Rarro. Het Rijksbeleid is niet aan de orde, omdat sprake is van een kleinschalige ontwikkeling en er geen onderwerpen vanuit de NOVI en Barro op het plangebied van toepassing zijn. Ook gelden er vanuit de Rarro geen beperkingen ten aanzien van het planvoornemen.

4.2 Provinciaal beleid

4.2.1 Geconsolideerde versie Omgevingsvisie POL2014

Blijkens de kaart behorende bij de Geconsolideerde versie van de Omgevingsvisie POL2014 is onderhavige locatie gelegen in de zone 'buitengebied'.

Onderhavige projectlocatie is gelegen binnen de zoneringen 'Bronsgroene landschapszone' en 'Buitengebied'.

afbeelding "i_NL.IMRO.1954.OVaalbekerweg73-ON01_0018.png"

Kaart Geconsolideerde versie Omgevingsvisie Limburg 2014

Bronsgroene landschapszone

De 'bronsgroene landschapszone' betreft de beekdalen én gebieden met steilere hellingen met een grote variatie aan functies, die in hoge mate bepalend zijn voor het beeld van het Limburgs landschap. De provinciale beleidsaccenten zijn gericht op de kwaliteit en het functioneren van het regionale watersysteem, de ontwikkeling van de landbouw in balans met de omgeving, het versterken van de kernkwaliteiten landschap en cultuurhistorie en recreatief medegebruik.

Buitengebied

De gronden die gelegen zijn in de zone 'Buitengebied' betreffen alle gronden in het landelijk gebied die niet zijn gelegen in de 'Goudgroene natuurzone', 'Zilvergroene natuurzone' en/of 'Bronsgroene landschapszone'. Het betreffen met name gronden met een agrarisch karakter, waarbij (o.a.) ruimte wordt gegeven voor doorontwikkeling van agrarische bedrijven. De provinciale beleidsaccenten in de zone 'Buitengebied' zijn gericht op ontwikkelingsmogelijkheden voor nieuwe (landbouw)bedrijfslocaties, het terugdringen van de milieubelasting vanuit de landbouw en de kwaliteit en het functioneren van de ondergrond.

4.2.2 Geconsolideerde versie Omgevingsverordening Limburg 2014 (OvL2014)

Het beleid verwoord in de provinciale omgevingsvisie is juridisch doorvertaald in de provinciale omgevingsverordening. In de Omgevingsverordening Limburg staan de provinciale regels op het gebied van milieu, provinciale wegen, (grond-)water, grond, landbouw, natuur, wonen en ruimte. Sprake is van twee soorten regels: instructieregels (voor gemeenten en waterschappen) en regels voor activiteiten die rechtstreeks voor alle inwoners en bedrijven gelden, of voor specifieke doelgroepen.

Landelijk gebied

Uit het kaartmateriaal behorende tot de omgevingsverordening blijkt de ligging van onderhavig projectgebied binnen het 'landelijk gebied'. Het provinciale beleid voor dergelijke gebieden is er op gericht om de stad-land relaties te versterken en de landschappelijke kernkwaliteiten te behouden, te beheren, te ontwikkelen en te beleven. Vanuit de principes 'Meer stad, meer land' en 'Zorgvuldig omgaan met onze ruimte en voorraden' is de provincie terughoudend met het mogelijk maken van nieuwe bebouwing in dit landelijk gebied.

afbeelding "i_NL.IMRO.1954.OVaalbekerweg73-ON01_0019.png"

Ligging projectgebied in 'landelijk gebied'

Bij voorliggend project vindt feitelijk herbouw plaats van is geen sprake van het realiseren van beeldbepalende bebouwing op een gewijzigde plek op het perceel. Vanuit die optiek is voorliggend project niet strijdig met het provinciale beleid binnen het landelijke gebied.

Beschermingsgebied Nationaal Landschap Zuid-Limburg

Onderhavig plangebied is blijkens de kaart 'Milieubeschermingsgebieden' gelegen in het beschermingsgebied Nationaal Landschap Zuid-Limburg.

afbeelding "i_NL.IMRO.1954.OVaalbekerweg73-ON01_0020.png"

Uitsnede kaart 'milieubeschermingsgebieden' met ligging projectgebied

In artikel 2.8.2, lid 1 van de OvL is voorgeschreven dat de toelichting bij een ruimtelijk plan dat betrekking heeft op een gebied gelegen in het beschermingsgebied 'Nationaal Landschap Zuid-Limburg', een beschrijving bevat van de in het plangebied voorkomende kernkwaliteiten, de wijze waarop met de bescherming en versterking van de kernkwaliteiten is omgegaan en hoe de negatieve effecten zijn gecompenseerd. De kernkwaliteiten voor het Nationaal Landschap Zuid-Limburg betreffen: 'schaalcontrast van zeer open naar besloten', 'het groene karakter', 'reliëf en ondergrond' en 'rijk en gevarieerd cultuurhistorisch erfgoed'. In paragraaf 6.5.2 wordt nader ingegaan op de kernkwaliteiten.

4.2.3 Ladder voor duurzame verstedelijking

De zogenaamde 'ladder voor duurzame verstedelijking' is opgenomen in artikel 3.1.6, tweede lid, Besluit ruimtelijke ordening en stelt dat de toelichting bij een bestemmingsplan dat een nieuwe stedelijke ontwikkeling mogelijk maakt, een beschrijving bevat van de behoefte aan die ontwikkeling, en, indien het bestemmingsplan die ontwikkeling mogelijk maakt buiten het bestaand stedelijk gebied, een motivering waarom niet binnen het bestaand stedelijk gebied in die behoefte kan worden voorzien.

Voor wonen is de lijn dat vanaf 12 woningen sprake is van een stedelijke ontwikkeling. Voor overige stedelijke functies wordt in de overzichtsuitspraak gesteld, dat voor andere stedelijke ontwikkelingen als bedoeld in artikel 1.1.1 lid 1 onder i van het Bro in de vorm van een terrein 'in beginsel' geen sprake is van een nieuwe stedelijke ontwikkeling als het ruimtebeslag minder dan 500 m² bedraagt.

In onderhavig geval is per saldo sprake van het toevoegen van vijf woningen. Derhalve is de ladder voor duurzame verstedelijking niet van toepassing. Omdat onderhavige bebouwing in het bestemmingsplan is vastgelegd als 'beeldbepalend', is in voorliggend voornemen is sprake van het herbenutten van een beeldbepalend gebouw, zoals opgenomen in de Omgevingsverordening Limburg 2014, artikel 2.2.2, lid 1.

4.2.4 Provinciaal woonbeleid

In de geconsolideerde versie van de Omgevingsverordening Limburg 2014 zijn in paragraaf 2.4.2 Wonen de volgende instructieregels voor planvoorraad nieuwe woningen voorgeschreven.

"De toelichting bij een ruimtelijk plan dat betrekking heeft op de realisatie van een of meerdere woningen beschrijft dat:

  • a. rekening is gehouden met de hoofdstukken 3 (Limburgse principes en algemene zonering) en 5 (wonen en leefomgeving) van de provinciale omgevingsvisie;
  • b. sprake is van behoefte in kwaliteit en kwantiteit op basis van actueel onafhankelijk regionaal behoefteonderzoek;
  • c. over de behoefte aan realisatie van deze woningen overeenstemming bestaat binnen de regio Noord-Limburg of Midden-Limburg of Zuid- Limburg. De regio’s bepalen eigenstandig de regionale overeenstemming, organiseren hun eigen regionale overleggen en dragen zorg voor actuele regionale woonvisies en regionale onderzoeken;
  • d. het ruimtelijk plan is opgenomen in de Limburgse systematiek van monitoring.
  • e. realisatie van de woningen beoogd is binnen vijf jaar na vaststelling van het ruimtelijk plan en dat, als deze termijn niet wordt gehaald, hoe en wanneer de mogelijkheid tot realisatie van deze woningen komt te vervallen."

In lijn met de provinciale verordening heeft de gemeenteraad van Beekdaelen als fusiegemeente ingestemd met de (regionale) Structuurvisie Wonen Zuid-Limburg. Voorliggende planontwikkeling voldoet aan het bepaalde in die structuurvisie. In paragraaf 4.3.1 wordt daarop ingegaan.

4.2.5 Limburgs Kwaliteitsmenu

Voor (ruimtelijke) ontwikkelingen buiten de zogenaamde 'rode contouren' is het Limburgs Kwaliteitsmenu van kracht. In dit Kwaliteitsmenu geeft de provincie de Limburgse gemeenten een handreiking op welke wijze deze om moeten gaan met ontwikkelingen in het buitengebied. Gemeenten dienen in een structuurvisie dit provinciale beleidskader te verwerken en aan te geven op welke wijze zij toepassing geven aan het Limburgs Kwaliteitsmenu.

In z'n algemeenheid betreft het Limburgs Kwaliteitsmenu een beleidsregel die onder voorwaarden ruimtelijke ontwikkelingen in het buitengebied van Limburg toestaat. Daarbij dient sprake te zijn van 'kwaliteitswinst'. Deze kwaliteitswinst kan op diverse wijze tot stand komen, zoals bijvoorbeeld het realiseren van een landschappelijke inpassing, het slopen van bedrijfsbebouwing of glasopstanden, het realiseren van natuur of het leveren van een financiële bijdrage in een (gemeentelijk) 'groenfonds'. De provincie geeft in het Limburgs Kwaliteitsmenu richtlijnen en drempelwaarden voor het bepalen van de hoogte van de tegenprestatie bij verschillende soorten ruimtelijke ontwikkelingen.

Omdat onderhavig project voorziet in de herbouw van bestaande bebouwing waarbij het vroegere beeldbepalende volume wordt terug gebracht, en het projectgebied is gesitueerd in de lintbebouwing van Aalbeek behoeft het Limburgs Kwaliteitsmenu niet te worden toegepast.

4.2.6 Conclusie provinciaal beleid

Gelet op vorenstaande uiteenzetting van het vigerende provinciale beleid, bestaan er geen onoverkomelijke belemmeringen met betrekking tot voorliggende planontwikkeling.

De ter plekke van onderhavige projectlocatie van toepassing zijnde provinciale zoneringen 'Bronsgroene landschapszone' en 'Buitengebied' impliceren geen belemmeringen vanuit beleidsoogpunt. Voorts is geen sprake van strijdigheid met de uitgangspunten van het beschermingsgebied 'Nationaal Landschap Zuid-Limburg' en eventuele andere beschermingsgebieden. De ladder van duurzame verstedelijking en het Limburgs Kwaliteitsmenu zijn niet van toepassing op onderhavig voornemen.

4.3 Regionaal beleid

4.3.1 Structuurvisie Wonen Zuid-Limburg

De gemeente Beekdaelen heeft als fusiegemeente ingestemd met de Structuurvisie Wonen Zuid-Limburg (SVWZL). De SVWZL is een gezamenlijke, Zuid-Limburgse ruimtelijke visie op de woningmarkt, opgesteld door de Zuid-Limburgse gemeenten.

Op grond van het geldende bestemmingsplan is ter plekke van onderhavig projectgebied één wooneenheid toegestaan. In het kader van het geldende woningbouwbeleid, zoals vastgelegd is in de Structuurvisie Wonen Zuid-Limburg (SVWZL) en deels nader uitgewerkt in de beleidsregel 'Ruim baan voor goede woningbouwplannen 2021' (waarop hierna nader wordt ingegaan), betekent onderhavig project een (netto) toevoeging van vijf wooneenheden.

Op grond van beleidsafspraak VI van de SVWZL is voor deze netto toevoeging in beginsel compensatie vereist. Deze compensatie kan inhouden:

  • Het onttrekken van een gelijk aantal woningen als netto beoogd is;
  • Het onttrekken van bestaande plancapaciteit (1:1, 1:2 of 1:4) voor de netto toe te voegen woningen;
  • Het leveren van een financiële bijdrage in het subregionale sloopfonds.

Van deze compensatie kan echter ontheffing worden verleend als het bouwplan past binnen de beleidsregel 'Ruim baan voor goede woningbouwplannen 2021'.

Beleidsregel 'Ruim baan voor goede woningbouwplannen 2021'

De gemeenteraad van Beekdaelen heeft op 9 februari 2021 de beleidsregel 'Ruim baan voor goede woningbouwplannen 2021' vastgesteld. Op grond van deze beleidsregel hoeven 'goede woningbouwplannen' niet meer te worden gecompenseerd. Of sprake is van een goed woningbouwplan wordt bepaald aan de hand van drie criteria:

Criterium 1: Het plan heeft maatschappelijke meerwaarde

Een woningbouwplan heeft maatschappelijke meerwaarde wanneer bijvoorbeeld sprake is van één van de volgende situaties:

  • Aantoonbare verbetering van de leefbaarheid in centra en kernen;
  • Herstructurering/vervangingsbouw van woningen;
  • Hergebruik van winkels of (ander) bestaand waardevol vastgoed met passende woningbouw;
  • Aantoonbare bijdrage aan de transformatie van de bestaande woningvoorraad.

Daarbij wordt aangesloten op het ruimtelijke uitgangspunt dat inbreiding boven uitbreiding gaat.

Criterium 2: Het plan is planologisch aanvaardbaar

Een plan is (ruimtelijk) planologisch aanvaardbaar als het voldoet aan de Ladder van Duurzame verstedelijking (Besluit ruimtelijke ordening; artikel 3.1.6. lid 2) voor nieuwe stedelijke ontwikkelingen. Dit betekent dat een beschrijving van de kwalitatieve en kwantitatieve behoefte nodig is:

  • Criterium 2a: Het plan sluit aan bij de kwantitatieve behoefte
  • Criterium 2b: Het plan sluit aan bij de kwalitatieve behoefte

Criterium 3: Het plan is (sub)regionaal afgestemd

Het derde criterium betreft subregionale afstemming, zodat gezamenlijke oordeelsvorming plaatsvindt en het gemeenschappelijk belang voorop blijft staan (geen onderlinge concurrentie en overschotten op subregionaal niveau). De subregio bepaalt of het plan aan de subregionale woningmarktprogrammering wordt toegevoegd. Woningbouwplannen die concurrerend zijn op regionale schaal (de Zuid-Limburgse woningmarkt), worden ook op Zuid-Limburgse schaal afgestemd.

Onderhavig project voorziet in de toevoeging van vijf woningen in vorm van herbouw van een beeldbepalend pand. Als gevolg van het voornemen is sprake van een stedenbouwkundige kwaliteitsverbetering, verbetering van de beleving van de straat/locatie, en bovendien wordt een 'rotte plek' (leegstand) opgeheven. Voorts is geen sprake van een stedelijke ontwikkeling, zoals reeds in paragraaf 4.2.3 geconstateerd. Daarbij is verder door de gemeente vastgesteld dat sprake is van een woningbouwplan dat aansluit bij de kwalitatieve en kwantitatieve behoefte. Tot slot wordt voorliggende woningtoevoeging afgestemd met de (sub)regio en geplaatst op de regionale woningmarktprogrammering.

Bij voorliggend project is sprake van een 'goed woningbouwplan' dat in de basis voldoet aan de beleidsregel 'Ruim baan voor goede woningbouwplannen 2021'. Weliswaar is gebleken dat de te realiseren woningen boven de gehanteerde betaalbaarheidsgrens vallen qua huurprijs voor goedkope en middeldure huurwoningen. Dientengevolge wordt voor de toe te voegen vijf (extra) wooneenheden een financiële compensatie geleverd. Tussen de initiatiefnemer van voorliggend project en de gemeente Beekdaelen is specifiek voor wat betreft de toe te voegen woningen een anterieure overeenkomst is gesloten met daarin vastgelegd de afspraken over woningcategorie, instandhoudingstermijnen, financiële compensatie e.d..

4.4 Gemeentelijk beleid

4.4.1 Beleidsdocument 'Ons Beekdaelen maken we samen'

Op 3 juli 2018 is het beleidsdocument 'Ons Beekdaelen maken we samen' vastgesteld door de gemeenteraad van Nuth. Hierin is opgenomen dat voor de korte termijn het urgent is om zowel de kwaliteit van het woningaanbod binnen de gemeente Beekdaelen aan te pakken en – in beperkte mate – extra aanbod te creëren voor senioren en jongeren.

Verder is in het beleidsdocument aangegeven dat de karakteristieke uitstraling van de dorpen voor veel bewoners een reden is voor trots op het dorp. Tijdens de themabijeenkomst 'Excellent wonen en vitale kernen' is kenbaar gemaakt dat beeldbepalende panden en cultureel erfgoed uitermate belangrijk zijn voor die uitstraling, en dat dergelijke gebouwen moeten behouden blijven.

In dit verband is de bebouwing op de locatie Aalbekerweg 73 vanuit cultuurhistorische waarde geoormerkt en binnen het bestemmingsplan 'Kleine kernen' opgenomen als 'Beeldbepalend vanwege bouwmassa, ligging en oorspronkelijke gevelindelingen en gave gevelelementen (boogpoort, plint, sierstucwerk met blokpatronen, T-ramen)'. Een beeldbepalend pand is gedefinieerd als te handhaven gebouw of bouwwerk gezien de betekenis voor het stedenbouwkundig beeld ter plaatse. Deze panden worden aangewezen op basis van architectonische waarden, stedenbouwkundige waarden, architectuurhistorische waarden, cultuurhistorische waarden en zeldzaamheidswaarden.

Om beeldbepalende panden te behouden, dient voor deze een duurzame invulling te worden gezocht. Op basis van een bouwhistorisch onderzoek is een vormstudie gemaakt voor onderhavige beeldbepalende bebouwing. Hoewel de bebouwing wordt gesloopt en herbouwd, zullen de beeldbepalende elementen zoals vastgelegd in het bestemmingsplan worden teruggebracht. De bestaande spanten en vakwerk worden op de nieuwe locatie hergebruikt. Ook door middel van de materialisatie zullen de oorspronkelijke beeldbepalende elementen terugkeren. De Monumentencommissie heeft omtrent het herontwikkelingsplan positief geadviseerd.

4.4.2 Nota Ruimtelijke Kwaliteit

De gemeenteraad van Beekdaelen heeft op 23 december 2019 de Nota Ruimtelijke Kwaliteit vastgesteld. In deze nota is het kader voor bouwplantoetsing van de gemeente Beekdaelen neergelegd.

Onderhavig projectgebied is op grond van de Nota Ruimte Kwaliteit aangeduid als liggend binnen een 'historisch lint'. Dit gebied omvat linten in- en aansluitend aan de historische kernen, alsmede zelfstandige buurtschappen en bebouwingsconcentraties. Binnen deze gebieden is het beleid gericht op het beschermen en in stand houden van de bestaande waardevolle structuur. Aanpassingen dienen in hoge mate afgestemd te zijn op de kleinschalige basisstructuur. Zichtlijnen vanuit het landschap dienen in de overweging te worden betrokken.

Zoals de Monumentencommissie in haar eerdere adviezen heeft aangegeven is bij voorliggend bouwplan sprake van een versterking van de historische kwaliteit ter plekke. Voorliggend project dient in het kader van de aan te vragen omgevingsvergunning voor advies te worden voorgelegd aan Commissie Ruimtelijke Kwaliteit, die het bouwplan toetst aan de Nota Ruimtelijke Kwaliteit.

4.4.3 Conclusie gemeentelijk beleid

Gelet op het vorenstaande uiteenzetting wordt geconcludeerd dat onderhavig bouwplan niet strijdig is met dit beleid.

Hoofdstuk 5 Milieutechnische aspecten

Bij de realisering van een project moet in de eerste plaats rekening worden gehouden met aspecten uit de omgeving die een negatieve invloed kunnen hebben op het projectgebied. Dit geldt omgekeerd ook voor de uitwerking die het project heeft op zijn omgeving. Voor de locatie zijn in dit hoofdstuk de milieuaspecten bodem, geluid, milieuzonering, luchtkwaliteit en externe veiligheid onderzocht.

5.1 Bodem

5.1.1 Algemeen

Indien sprake is van een planologische functiewijziging en/of het realiseren van nieuwe verblijfsruimten, dient te worden bezien of de milieuhygiënische kwaliteit van de bodem ter plaatse geschikt is voor het voorgenomen gebruik. Voorliggend bouwplan voorziet in het realiseren van nieuwe verblijfsruimten binnen de reeds geldende bestemming 'Wonen'. Dientengevolge is een bodemonderzoek verricht.

5.1.2 Verkennend en nader bodemonderzoek

Ter plekke van onderhavig projectgebied is een verkennend en nader bodemonderzoek uitgevoerd. De rapportage hiervan is in zijn geheel opgenomen in Bijlage 4. Op grond van het verrichte onderzoek zijn de volgende conclusies getrokken en aanbevelingen gedaan.

Bovengrond

Geheel in de noordoostzijde van het projectgebied is sprake van een sterke PAK-verontreiniging van de bovengrond (0 – 0,5 m-mv). Door middel van nader onderzoek en het plaatsen van aanvullende boringen is deze verontreiniging zowel horizontaal als verticaal ingekaderd. De omvang van de sterke verontreiniging bedraagt circa 3,5 m3, waardoor geen sprake is van ernstige bodemverontreiniging (<25 m3). Indien in de toekomst ter plekke graafwerkzaamheden plaatsvinden, dient een Plan van Aanpak te worden opgesteld waarna, na goedkeuring van het bevoegd gezag, de sterke verontreiniging met PAK kan worden verwijderd.

Ondergrond

Op basis van het onderzoek is gebleken dat de ondergrond (0,5 – 2,0 m-mv) niet is verontreinigd.

Asbest

Het gehele terrein is visueel beoordeeld op de aanwezigheid van asbestverdachte materialen. Deze zijn op onderhavige onderzoekslocatie waargenomen in de vorm van asbestverdacht plaatmateriaal als dakconstructie. Ter plekke heeft nader onderzoek plaatsgevonden middels proefsleuven. Uit de uitkomende grond is geen asbestverdacht plaatmateriaal waargenomen. Voorts is in alle monsters geen asbest aangetoond boven de detectielimiet.

5.1.3 Conclusie bodem

Gelet op vorenstaande vormt het aspect bodem geen belemmeringen voor het project.

5.2 Geluid

5.2.1 Algemeen

Met betrekking tot het aspect geluid kan sprake zijn van geluidbelasting als gevolg van wegverkeerslawaai, industrielawaai en spoorweglawaai.

Onderhavige locatie is gelegen aan de Aalbekerweg. Voor deze weg geldt een snelheidsregime van 50 km/u. Dergelijke wegen zijn op grond van de Wet geluidhinder gezoneerd. Onderhavige locatie is gelegen binnen de geluidzone van de Aalbekerweg, waardoor akoestisch onderzoek noodzakelijk is.

5.2.2 Akoestisch onderzoek wegverkeerslawaai

Ten behoeve van onderhavig project is een akoestisch onderzoek wegverkeerslawaai verricht. De rapportage hiervan is bijgevoegd als Bijlage 5. Op grond van het verrichte onderzoek zijn de volgende conclusies getrokken en aanbevelingen gedaan.

  • De geluidbelasting als gevolg van wegverkeer op de Aalbekerweg (N298) overschrijdt de voorkeursgrenswaarde van 48 dB op de gevels van beide nieuwe woningen met maximaal 9 dB ;
  • De maximale ontheffingswaarde van 63 dB voor nieuwbouw in stedelijk gebied wordt nergens overschreden waardoor het mogelijk is om een hogere (grens)waarde te verlenen conform artikel 110a, lid 5 van de Weg geluidhinder;
  • De maximale gecumuleerde waarde bedraagt 62 dB waardoor;
  • Omdat sprake is van een cumulatieve geluidbelasting hoger dan 53 dB dient nader onderzoek te worden uitgevoerd ter bepaling van de geluidwering van de gevel.

Gelet op de resultaten van het akoestisch onderzoek gevelbelasting, is akoestisch onderzoek naar de geluidwering van de gevels uitgevoerd. De rapportage van dit onderzoek is bijgevoegd als Bijlage 6. In dit onderzoek zijn de voorzieningen opgenomen die minimaal noodzakelijk zijn om te kunnen voldoen aan de vereiste karakteristieke geluidwering. Eventuele alternatieve oplossingen c.q. voorzieningen zijn mogelijk zolang de RA-waarden minimaal gelijk zijn aan de in de rapportage vermelde waarden.

Op grond van vorenstaande wordt voor onderhavig bouwplan tevens een hogere grenswaarde verleend.

5.2.3 Conclusie geluid

Gelet op vorenstaande vormt, met toepassing van de juiste geluidwerende materialen en maatregelen (conform nader akoestisch onderzoek geluidwering gevel), het aspect geluid geen belemmeringen voor het bouwplan en is een aanvaardbaar woon- en leefklimaat in de nieuwe woningen gewaarborgd.

5.3 Milieuzonering

5.3.1 Algemeen

Milieuzonering zorgt ervoor dat nieuwe bedrijven een passende locatie in de nabijheid van woningen krijgen en dat (andersom) nieuwe woningen op een verantwoorde afstand van bedrijven gesitueerd worden. Het waar mogelijk scheiden van bedrijven en woningen bij nieuwe ontwikkelingen dient twee doelen:

  • het reeds in het ruimtelijke spoor voorkomen of zoveel mogelijk beperken van hinder en gevaar voor woningen;
  • het tegelijk daarmee aan de bedrijven voldoende zekerheid bieden dat zij hun activiteiten duurzaam binnen aanvaardbare voorwaarden kunnen uitoefenen.

De gemeente beslist zelf of zij op een bepaalde locatie bedrijven of woningen wil mogelijk maken. Dit besluit dient echter wel zorgvuldig te worden afgewogen en te worden verantwoord.

5.3.2 Bestaande bedrijvigheid

In de directe omgeving van onderhavig plangebied is op circa 10 meter afstand het agrarische bedrijf aan de Aalbekerweg 77 gesitueerd. De bedrijfsvoering ter plekke richt zich op de teelt van pit- en steenvruchten. Op basis van de VNG-brochure 'Bedrijven en milieuzonering (editie 2009)' dienen voor bedrijven gericht op 'akkerbouw en fruitteelt (bedrijfsgebouwen)' (SBI-2008: 011, 012, 013) in beginsel de volgende richtafstanden tot gevoelige objecten (zoals woningen) te worden gehanteerd:

  • Geur : 10 m
  • Stof : 10 m
  • Geluid : 30 m (continu)
  • Gevaar : 10 m

Deze richtafstanden gelden ten opzichte van een rustige woonwijk. De omgeving van onderhavig projectgebied kenmerkt zich echter door een afwisseling van woonpercelen en agrarische bedrijfslocaties. Op grond van de VNG-brochure kunnen de richtafstanden met één afstandsstap worden verlaagd indien sprake is van een omgevingstype gemengd. In casu kunnen zodoende de hiervoor genoemde richtafstanden met één afstandstap worden verlaagd:

  • Geur : 0 m
  • Stof : 0 m
  • Geluid : 10 m (continu)
  • Gevaar : 0 m

De afstand tussen de inrichtingsgrens van het agrarische bedrijf gelegen aan de Aalbekerweg 77 en het projectgebied bedraag circa 11 meter. Zodoende wordt aan de te hanteren richtafstanden voldaan. In de nieuw te realiseren woningen is daarmee sprake van een goed woon- en leefklimaat.

Aanvullend dient te worden opgemerkt dat de nieuw te bouwen woningen niet maatgevend zullen zijn voor de agrarische bedrijfsvoering, echter de tussen gelegen woning (Aalbekerweg 75). De te bouwen woningen hebben daardoor geen extra belemmerende invloed op de ontwikkelingsmogelijkheden van het agrarisch bedrijf.

5.3.3 Conclusie milieuzonering

Gelet op vorenstaande vormt het aspect milieuzonering geen belemmering voor het bouwplan.

5.4 Luchtkwaliteit

5.4.1 Algemeen

Sinds 15 november 2007 zijn de belangrijkste bepalingen inzake de luchtkwaliteit opgenomen in hoofdstuk 5, titel 5.2 van de Wet milieubeheer (hierna ook: Wm). Omdat de luchtkwaliteitseisen op zijn genomen in titel 5.2 van de Wm, staat deze ook wel bekend als de 'Wet luchtkwaliteit'.

Het doel van titel 5.2 Wm is om de mensen te beschermen tegen de negatieve gevolgen van luchtverontreiniging op hun gezondheid. In de wet- en regelgeving zijn de richtlijnen uit de Europese regelgeving opgenomen, waaraan voorgenomen ontwikkelingen dienen te voldoen.

Als aan minimaal één van de volgende voorwaarden wordt voldaan, vormen de luchtkwaliteitseisen in beginsel geen belemmering voor het uitoefenen van de bevoegdheid van een bestuursorgaan ex. artikel 5.16 Wm:

  • er is geen sprake van een feitelijke of dreigende overschrijding van de grenswaarde;
  • een project leidt al dan niet per saldo, niet tot een verslechtering van de luchtkwaliteit;
  • een project draagt 'niet in betekenende mate' (NIBM) bij aan de verslechtering van de luchtkwaliteit;
  • een project past binnen het NSL (Nationaal Samenwerkingsprogramma Luchtkwaliteit) of een regionaal programma van maatregelen.
5.4.2 Het besluit NIBM

Deze Algemene maatregel van Bestuur (AmvB) legt vast wanneer een project 'niet in betekenende mate' bijdraagt aan de toename van concentraties van bepaalde stoffen in de lucht. Een project is NIBM wanneer het aannemelijk is dat het een toename van de concentratie veroorzaakt van maximaal 3%. De 3% grens wordt gedefinieerd als 3% van de grenswaarde voor de jaargemiddelde concentratie van fijn stof (PM10) of stikstofdioxide (NO2). Dit komt overeen met 1,2 microgram/m3 voor zowel PM10 als NO2. Het NSL is vanaf augustus 2009 van kracht, zodat de 3% grens aangehouden dient te worden.

In de regeling NIBM is (onder andere) aangegeven dat een plan tot 1.500 woningen niet in betekenende mate bijdraagt aan de toename van de concentratie fijn stof en stikstofdioxide in de lucht. Gelet op de kleinschaligheid van voorliggend project is dit niet aan de orde.

NIBM-tool InfoMil

Ook zal het plan niet leiden tot een dusdanig aantal toenemende verkeersbewegingen dat de grenswaarde van de luchtkwaliteit daarmee wordt overschreden. InfoMil heeft een NIBM-tool ontwikkeld waarmee een 'worst-case' berekening kan worden verricht voor de bijdrage van het extra verkeer als gevolg van een plan op de luchtkwaliteit. Dit rekenmodel toont aan dat tot 2.435 extra voertuigen (weekdaggemiddelde) niet in betekenende mate bijdragen aan de verslechtering van de luchtkwaliteit. Hierbij wordt uitgegaan van 0% vrachtverkeer. Het toevoegen van vijf extra woningen zal niet zorgen voor een dergelijke toename van verkeersbewegingen.

5.4.3 Besluit gevoelige bestemmingen

Dit besluit is gericht op de beperking van de vestiging in de nabijheid van provinciale en rijkswegen van gevoelige bestemmingen, zoals gebouwen voor kinderopvang, scholen, verzorgings- of verpleegtehuizen.

Omdat geen gevoelige bestemming wordt gerealiseerd, is het besluit niet aan de orde.

5.4.4 Conclusie

Gelet op vorenstaande vormt het aspect luchtkwaliteit geen belemmeringen voor het bouwplan.

5.5 Externe veiligheid

In onderhavig geval is sprake van het realiseren van zogenaamde kwetsbare objecten. Het beleid is derhalve van toepassing en er is een afweging gemaakt of de planontwikkeling ertoe leidt dat er een onaanvaardbaar risico ontstaat in het kader van de externe veiligheid.

5.5.1 Beleid

Het beleid in het kader van de externe veiligheid is gericht op het beperken en beheersen van risico's voor de omgeving voor wat betreft handelingen met gevaarlijke stoffen. Deze handelingen kunnen zowel betrekking hebben op het gebruik, de opslag en de productie van gevaarlijke stoffen, als op het vervoer van deze stoffen.

Uit het Besluit externe veiligheid inrichtingen (Bevi) en de richtlijnen voor het vervoer van gevaarlijke stoffen, vloeit de verplichting voort om in het kader van ruimtelijke plannen in te gaan op de risico's in het plangebied als gevolg van handelingen met gevaarlijke stoffen. Deze risico's worden beoordeeld op twee soorten risico: het groepsrisico en het plaatsgebonden risico.

Plaatsgebonden risico

Het plaatsgebonden risico beschrijft de kans dat een onbeschermd individu in een jaar komt te overlijden als gevolg van een ongeval met gevaarlijke stoffen. Het plaatsgebonden risico wordt uitgedrukt in risicocontouren rondom de risicobron. Voorbeelden van risicobronnen zijn bedrijven, wegen en spoorlijnen. De 10-6-contour is de maatgevende grenswaarde, binnen welke contour geen kwetsbare objecten mogen worden opgericht.

Groepsrisico

Het groepsrisico beschrijft de kans dat een groep van 10 of meer personen tegelijkertijd komt te overlijden als gevolg van een ongeval met gevaarlijke stoffen. Dit risico geeft een indicatie van de maatschappelijke ontwrichting in geval van een ramp. Het groepsrisico wordt uitgedrukt in een grafiek. In het Bevi is een verantwoordingsplicht binnen het invloedsgebied opgelegd, i.c. het gebied binnen de zogenaamde 1%-letaliteitsgrens, zijnde de afstand vanaf een risicobedrijf waarop nog slechts 1% van de blootgestelde mensen in de omgeving overlijdt bij een ongeval op het risicobedrijf.

Voor elke verandering van het groepsrisico, dit kan een af- of toename zijn, in het invloedsgebied moet verantwoording worden afgelegd. Deze verantwoording ziet toe op de wijze waarop de toelaatbaarheid van de verandering van het groepsrisico in de besluitvorming is betrokken. Samen met de hoogte van het groepsrisico, worden ook andere aspecten meegewogen in de beoordeling van het groepsrisico. Hieronder vallen onder meer de zelfredzaamheid en de bestrijdbaarheid van een calamiteit.

Verantwoording van het groepsrisico

Voor bepaalde situaties geldt op basis van het beleid een verplichting tot verantwoording van het groepsrisico. Deze verantwoordingsplicht houdt in dat iedere wijziging met betrekking tot planologische keuzes moet worden onderbouwd én verantwoord door het bevoegd gezag. Hierbij geeft het bevoegd gezag aan of het groepsrisico in de betreffende situatie aanvaardbaar wordt geacht. In het Bevi, de Bevt (Besluit externe veiligheid transportroutes) en het Bevb (Besluit externe veiligheid buisleidingen) zijn bepalingen opgenomen waaraan deze verantwoording dient te voldoen.

De verantwoording van het groepsrisico is conform het Bevi van toepassing indien sprake is van een ruimtelijke ontwikkeling binnen het invloedsgebied van een Bevi-inrichting.

Voor buisleidingen geldt dat de verantwoording van het groepsrisico van toepassing is binnen de 1%-letaliteitsafstand van de buisleiding. Als de ruimtelijke ontwikkeling buiten de 100%-letaliteitsafstand plaatsvindt of buiten de 10-8 plaatsgebonden risicocontour voor toxische stoffen, of het groepsrisico kleiner is dan 0,1 maal de oriëntatiewaarde of met minder dan 10% toeneemt, kan een aantal onderdelen van de verantwoording achterwege worden gelaten. In dat geval richt de focus zich hoofdzakelijk op de mogelijkheden tot voorbereiding van bestrijding en beperking van de omvang van een ramp of zwaar ongeval alsmede hulpverlening en zelfredzaamheid.

Conform het Bevt dient een significante toename van het groepsrisico of een overschrijding van de oriëntatiewaarde verantwoord te worden.

5.5.2 Risicovolle bronnen

Ten behoeve van de beoordeling van de voor onderhavige kwetsbare objecten mogelijke externe veiligheidsrisico's, is de Risicokaart Limburg geraadpleegd. Op de risicokaart is informatie opgenomen over transportroutes, buisleidingen, en risicovolle inrichtingen.

afbeelding "i_NL.IMRO.1954.OVaalbekerweg73-ON01_0021.png"

Uitsnede Risicokaart Limburg met aanduiding projectlocatie

Transportroutes

In de omgeving van de projectlocatie zijn geen routes over waterwagen en spoorwegen waarover transport van gevaarlijke stoffen plaatsvindt.

Wel is de projectlocatie gelegen aan de provinciale weg N298. Uit de vervoersgegevens van Rijkswaterstaat blijkt dat over de N298 de stofcategorie LF1 wordt vervoerd. De toxische vloeistoffen bepalen in dit geval de begrenzing van het invloedsgebied. Uit tabel 4-2 van de Handreiking Risicoanalyse Transport (HART) volgt dat de grens van het invloedsgebied als gevolg van transport van LF1 45 meter bedraagt. Hiermee ligt de projectlocatie binnen het invloedsgebied van de N298.

Aangezien de projectlocatie is gelegen binnen het invloedsgebied, volstaat een beperkte verantwoording van het groepsrisico. Met betrekking tot het groepsrisico kan worden vermeld dat sprake is van het realiseren van 'slechts' één extra woning dan wel van een zeer geringe toename van de personendichtheid binnen het invloedsgebied. Als zodanig zal ook de toename van het groepsrisico zeer gering zijn.

Vanwege de ligging van het projectgebied binnen het invloedsgebied van een transportroute waar transport met gevaarlijke stoffen plaats vindt dient de Veiligheidsregio Zuid-Limburg om advies te worden gevraagd over de bestrijding van een ramp of zwaar ongeval en over de zelfredzaamheid van personen binnen het invloedsgebied en het projectgebied.

Geadviseerd is om het object uit te voeren met een afsluitbare ventilatie die centraal kan worden gestuurd. Bij een incident met giftige stoffen op de weg is het handelingsperspectief binnen blijven en schuilen tot de lekkage is gestopt en metingen van de hulpdiensten uitwijzen dat de luchtwaardes veilig zijn. Voor personen buiten is naar binnen gaan een goed handelingsperspectief. Voorwaarde is dat de luchttoevoer van buitenaf volledig kan worden afgesloten en dat ramen en deuren gesloten blijven.

Buisleidingen

Binnen een straal van circa 1 kilometer rondom onderhavig plangebied is geen sprake van (ondergrondse) buisleidingen.

Risicovolle inrichtingen

Binnen een straal van circa 1 kilometer rondom onderhavig plangebied is geen sprake van risicovolle inrichtingen.

5.5.3 Resultaten en conclusies externe veiligheid

Als gevolg van onderhavige ontwikkeling ontstaan er geen (extra) risico's in het kader van externe veiligheid. Daarbij kan worden gesteld dat de zelfredzaamheid in casu goed te noemen is. Ook is de bereikbaarheid van de locatie bij een eventuele calamiteit goed.

Hierdoor is de planontwikkeling in het kader van de externe veiligheid verantwoord te noemen, en vormt dit aspect geen onoverkomelijke belemmeringen.

Hoofdstuk 6 Overige ruimtelijke aspecten

Naast de diverse milieutechnische aspecten, zoals uiteengezet in Hoofdstuk 5, dient tevens te worden gekeken naar de overige ruimtelijke aspecten. In dit hoofdstuk wordt ingegaan op de aspecten archeologie, kabels en leidingen, verkeer en parkeren, waterhuishouding, natuur- en landschap, flora en fauna en duurzaamheid.

6.1 Archeologie

6.1.1 Algemeen

Archeologische waarden zijn bij wet beschermd. Daaromtrent zijn in de Erfgoedwet bepalingen opgenomen die de gemeenteraad in acht moet nemen.

Voor onderhavige projectlocatie is ten aanzien van het aspect archeologie de 'Archeologische verwachtingskaart Nuth' geraadpleegd.

afbeelding "i_NL.IMRO.1954.OVaalbekerweg73-ON01_0022.png"

Uitsnede archeologische verwachtingskaart met aanduiding projectlocatie

Op grond van de bovenstaande kaart is onderhavig projectgebied gelegen in 'waardecategorie 3: Overige monumenten en gebieden met een hoge verwachtingswaarde'. Gelet op het bij de verwachtingskaart behorende schema ondergrenzen dient voor deze waardecategorie bij bouwplannen met een bouwdiepte van meer dan 0,40 meter beneden maaiveld en een grotere verstoring dan 250 m² archeologisch onderzoek te worden verricht.

6.1.2 Verricht archeologisch onderzoek

Voor onderhavig project is archeologisch onderzoek verricht. De rapportage hiervan is bijgevoegd als Bijlage 7. Op grond van dit onderzoek zijn de volgende conclusies getrokken en aanbevelingen gedaan.

Op basis van de resultaten van het verkennend booronderzoek in combinatie met de bureaustudie kan de archeologische verwachting met betrekking tot de aanwezigheid van behoudenswaardige archeologische complexen ter plekke van onderhavige locatie worden bijgesteld naar laag. Op basis hiervan is voor het projectgebied geadviseerd om geen verdergaand archeologisch vervolgonderzoek uit te voeren.

Weliswaar is opgemerkt dat op basis van het verkennende booronderzoek geen uitspraak kan worden gedaan over de eventuele aanwezigheid van ondergrondse bouwresten uit de 18e eeuw of daarvoor binnen het noordelijke deel van het plangebied ter plaatse van de huidige historische boerderij. De aanwezigheid hiervan kan niet op voorhand worden uitgesloten. Evenmin wordt een uitspraak gedaan over de bouwhistorische waarde van de huidige bebouwing inclusief bijbehorende ondergrondse structuren.

In alle gevallen geldt dat indien bij toekomstig graafwerk archeologische vondsten worden gedaan of archeologische grondsporen worden aangetroffen, deze direct gemeld dienen te worden bij de minister dan wel de gemeente Beekdaelen conform de Erfgoedwet 2016, artikel 5.10 & 5.11.

6.1.3 Conclusie archeologie

Gelet op vorenstaande vormt het aspect archeologie geen belemmeringen voor het bouwplan.

6.2 Kabels en leidingen

6.2.1 Boven- en ondergrondse leidingen

Door de projectlocatie lopen geen boven- en/of ondergrondse leidingen. Er is op dat gebied derhalve geen sprake van bijbehorende (planologische) beschermingszones en/of belangen van derden op dit punt.

6.2.2 Nutsvoorzieningen

De aanwezigheid van kabels en leidingen met betrekking tot de nutsvoorzieningen in de omgeving is evident. Bij het nader uitwerken van aansluitingen, dient met de verschillende netwerkbeheerders contact te worden opgenomen.

6.2.3 Conclusie kabels en leidingen

Gelet op vorenstaande vormt het aspect kabels en leidingen geen belemmeringen voor het bouwplan.

6.3 Verkeer en parkeren

Met betrekking tot onderhavige planontwikkeling dienen de (eventuele) gevolgen voor de verkeersstructuur alsmede het parkeren inzichtelijk te worden gemaakt.

6.3.1 Ontsluiting

In de bestaande situatie vindt de onsluiting van het projectgebied plaats via één in- en uitritconstructie op de Aalbekerweg. Als gevolg van voorliggende project blijft sprake van één ontsluiting.

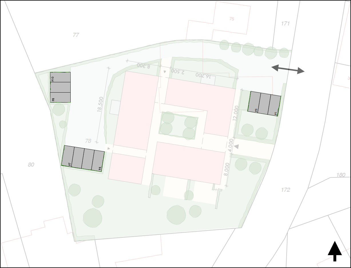
6.3.2 Parkeren

Op basis van de parkeerkencijfers zoals vastgesteld in de CROW-publicatie 317 'Kencijfers parkeren en verkeersgeneratie' dienen ten behoeve van voorliggend project 10 parkeerplaatsen op eigen terrein beschikbaar te zijn.

De beoogde parkeergelegenheid, en ontsluiting daarvan, is in onderstaande figuur gevisualiseerd.

afbeelding "i_NL.IMRO.1954.OVaalbekerweg73-ON01_0023.png"

Parkeren en ontsluiting

6.3.3 Verkeersstructuur

Voor een woning dient rekening te worden gehouden met circa 8 motorvoertuigbewegingen per etmaal (mvt/etm). Als gevolg van voorliggend project neemt de verkeersgeneratie zodoende toe met circa 40 mvt/etm. Deze beperkte toename van het aantal voertuigbewegingen zal niet leiden tot problemen in de verkeersdoorstroming, -veiligheid, en -afwikkeling.

6.3.4 Conclusie verkeer en parkeren

Gelet op vorenstaande vormt het aspect verkeer en parkeren geen belemmeringen voor het bouwplan.

6.4 Waterhuishouding

6.4.1 Nationaal Water Programma 2022-2027

In Nederland liggen grote opgaven voor het waterdomein:

  • Nederland moet zich aanpassen aan de gevolgen van klimaatverandering:
  • Nederland moet blijven werken aan een goede bescherming tegen overstromingen en aan een klimaatrobuuste zoetwatervoorziening tegen toenemende droogte;
  • Ook de zorg voor goede waterkwaliteit en duurzame drinkwatervoorziening verdient aandacht.

Om aan te geven hoe om te gaan met de uitdagingen van water, ontwikkelt de Rijksoverheid het Nationaal Water Programma (NWP) 2022-2027.

Het programma geeft een overzicht van de ontwikkelingen binnen het waterdomein en legt nieuw ontwikkeld beleid vast. De Rijksoverheid werkt aan schoon, veilig en voldoende water dat klimaatadaptief en toekomstbestendig is. Ook is er aandacht voor de raakvlakken van water met andere sectoren. Het NWP beschrijft de nationale beleids- en beheerdoelen op het gebied van klimaatadaptatie, waterveiligheid, zoetwater & waterverdeling, waterkwaliteit & natuur, scheepvaart, en de functies van de rijkswateren.

6.4.2 Provinciaal Waterplan Limburg 2022-2027

Het waterbeleid in het Provinciaal Waterplan 2022-2027 omvat de strategische hoofdlijnen voor het provinciale waterhuishoudkundig beleid. Hierin geeft de provincie uitwerking aan de in de Omgevingsvisie Limburg opgenomen provinciale belangen op het gebied van water:

  • Een integrale en realistische benadering van hoogwaterbescherming, wateroverlast, watertekort, verdroging en de verbetering van de waterkwaliteit in het stroomgebied van de Maas;
  • Het in samenhang bezien en aanpakken van de zoetwatervoorziening (voor drinkwater en andere functies), natuurherstel, watersysteemherstel, waterveiligheid, landbouw, landschap en de stikstofproblematiek;
  • Een ecologisch gezond, veerkrachtig en adaptief watersysteem om weersextremen zoveel mogelijk op een natuurlijke wijze op te vangen.

De provincie stelt in de Omgevingsvisie Limburg en in het Provinciaal Waterprogramma Limburg de beleidskaders voor het regionale watersysteem. Op grond van het bepaalde in artikel 3.7 van de Omgevingswet zijn de onderdelen van het Provinciaal Waterprogramma die uitvoering geven aan de diverse Europese richtlijnen over water voor het waterschap kaderstellend.

Gelet op de inhoudelijke samenhang binnen het watersysteem en de hiervoor vermelde provinciale belangen is doorwerking van het volledige waterprogramma naar het waterschap noodzakelijk. Hieraan is in de Omgevingsverordening invulling gegeven.

6.4.3 Waterbeheerprogramma Waterschap Limburg 2022-2027

Elke zes jaar leggen waterschappen vast welke aanpak en welke maatregelen op hoofdlijnen nodig zijn om het watersysteem en de waterkeringen op orde te brengen en te houden. Het programma geeft invulling aan het bestuursprogramma uit 2019 en de meerjarenbegroting waarin de koers voor de periode 2021-2025 is uitgezet.

Kort samengevat zijn de belangrijkste speerpunten in het Waterbeheerprogramma:

  • Hoogwaterbescherming Maasvallei: bescherming tegen overstromingen vanuit de Maas;
  • Klimaatadaptatie: balans tussen water afvoeren én water vasthouden;
  • Waterkwaliteit en ecologie: het water is schoon en wateren zin natuurlijk ingericht;
  • Zuiveren en waterketen: zuiveren rioolwater en grondstoffen terugwinnen en gebruiken.

Deze indeling is niet scherp, want water kent geen grenzen en is verbonden met andere thema's. Duurzamer grondgebruik in het stroomgebied van de Maas en de beken zorgt voor een gelijkmatiger afvoerdynamiek. Regenwater infiltreren in stedelijk gebied helpt daar ook bij, voorkomt dat riolen overstorten en ontlast onze zuiveringen. Een constantere aanvoer in de zomer verlaagt de kans op waterkwaliteitsproblemen door droogte en hitte. Kortom: alle uitdagingen moeten in samenhang met elkaar worden bekeken. Met de maatregelen worden het liefst meerdere problemen tegelijk opgelost: een integrale aanpak.

6.4.4 Afvalwater en hemelwater

Op welke wijze wordt omgegaan met het afval- en hemelwater binnen het onderhavige plangebied wordt hierna uiteengezet.

Afvalwater

Het afvalwater als gevolg van onderhavige project zal worden geloosd op de gemeentelijke riolering van de gemeente Beekdaelen. Vanuit milieuhygiënisch oogpunt is het afvoeren van afvalwater via de gemeentelijke riolering vereist en daarmee tevens de beste optie.

Hemelwater van onverhard en semi-verhard terrein

Het hemelwater dat valt op de onverharde en semi-verharde terreindelen binnen het projectgebied zal worden opgevangen met een gescheiden rioleringsnet dat wordt aangesloten op een infiltratievoorziening van voldoende capaciteit.

Hemelwater (dak)verhardingen

Het hemelwater dat valt op de nieuwe (dak)verharding zal worden opgevangen en oppervlakkig worden afgevoerd, hetzij via aanwezige paden hetzij via goten, naar een te realiseren hemelwatervoorziening.

Capaciteit hemelwatervoorziening

Het streven is om bij nieuwbouw 100% van het verharde oppervlak af te koppelen. Om te beoordelen hoe groot de te realiseren hemelwatervoorziening moet zijn, dient de hoeveelheid af te voeren hemelwater te worden berekend bij extreme buien van 80 mm binnen 2 uur. In het kader van voorliggend project dient met deze kengetallen rekening te worden gehouden.

Omdat wordt voorzien in circa 426 m² dakverharding toegevoegd, dient hiervoor een hemelwatervoorziening te worden beschikbaar te zijn met een capaciteit van 34 m³. Gelet op de grootte van het perceel is afdoende ruimte beschikbaar om te kunnen voorzien in een adequate hemelwatervoorziening. Initiatiefnemer wenst daarbij het hemelwater deels op te vangen in tanks ten behoeve van hergebruik in sanitair en wasvoorzieningen.

Opvang schoon hemelwater

In de hemelwatervoorzieningen mag enkel schoon hemelwater worden opgevangen, waaraan geen verontreinigende stoffen zijn toegevoegd. Uitloging bij infiltratie kan worden voorkomen door alleen schoon hemelwater te infiltreren in de bodem. Door het gebruik van niet-uitlogende materialen in de bouw kan verontreiniging van het hemelwater worden voorkomen.

Voorkomen van wateroverlast

Door bij het bepalen van het bouwpeil en afschot hiermee rekening te houden, kan worden voorkomen dat geen water in de te realiseren gebouwen kan vloeien. Daarnaast kan ten aanzien van wateroverlast voor derden worden gesteld dat hiervan geen sprake zal zijn, bij het op juiste wijze bepalen van het bouwpeil en afschot.

6.4.5 Conclusie waterhuishouding

Gelet op vorenstaande vormt het aspect waterhuishouding geen belemmeringen voor het bouwplan.

6.5 Natuurbescherming

Per 1 januari 2017 is de Wet natuurbescherming in werking getreden. Deze wet vervangt de Natuurbeschermingswet 1998, de Boswet en de Flora- en faunawet.

6.5.1 Natuurnetwerk

Onderhavig projectgebiedis niet gelegen in het 'Natuurnetwerk'. De zoneringen 'bronsgroene landschapszone' en 'buitengebied' maken hiervan geen onderdeel uit.

6.5.2 Kernkwaliteiten

Zoals reeds eerder geconstateerd in paragraaf 4.2.2 is het projectgebied gelegen in het beschermingsgebied 'Nationaal Landschap Zuid-Limburg'. In de Omgevingsverordening Limburg 2014 wordt ten aanzien van het beschermingsgebied 'Nationaal Landschap Zuid-Limburg' voorgeschreven dat de toelichting bij een ruimtelijk plan dat betrekking heeft op een gebied gelegen in deze gebieden – waarvan in casu sprake is – een beschrijving bevat van de in het plangebied voorkomende kernkwaliteiten, de wijze waarop met de bescherming en versterking van de kernkwaliteiten is omgegaan en hoe de negatieve effecten zijn gecompenseerd.

Schaalcontrast van zeer open naar besloten

Onderhavig projectgebied kent een besloten ligging tussen de omliggende woonpercelen. Vanwege de herbouw van het beeldbepalende pand wordt dit karakter niet onevenredig aangetast.

Het groene karakter

Ter plekke van het projectgebied zelf is sprake van opgeschoten en verwilderd groen. Er is geen sprake van beschermingswaardige landschappelijke aanplant. Van een onevenredige aantasting van de kernkwaliteit 'groen karakter' kan dan ook geen sprake zijn.

 Reliëf en ondergrond

Onderhavig plangebied betreft een vrij vlak gelegen terrein. Het project impliceert geen wijzigingen in het bestaande reliëf en ondergrond, waardoor geen sprake is van een onevenredige aantasting.

Rijk en gevarieerd cultuurhistorisch erfgoed

Ter plekke van onderhavig plangebied is sprake van beeldbepalende bebouwing. Met de sloop en herbouw van deze bebouwing, met een gewijzigde situering op het perceel, is de insteek om het beeldbepalende karakter weer te doen herleven. Eén van de door de gemeente gestelde voorwaarden aan het bouwplan is dat de beeldbepalende elementen van het pand terug moeten komen in de nieuwbouw. Vanwege het project is geen sprake van een onevenredige aantasting van deze kernkwaliteit. Integendeel: de Monumentencommissie heeft geoordeeld dat sprake is van een versterking van de historische kwaliteit ter plekke.

6.5.3 Natura2000

Natura2000 is een Europees netwerk van beschermde natuurgebieden. In Natura2000 gebieden worden bepaalde diersoorten en hun natuurlijke leefomgeving beschermd door de biodiversiteit te behouden. Natura2000 gebieden worden beschermd door de 'Wet natuurbescherming'.

Het meest nabijgelegen Natura2000-gebied is het op 1,3 kilometer gelegen 'Geleenbeekdal'. Op 1,7 kilometer is tevens het Natura2000-gebied 'Geuldal' gelegen. Gelet op deze afstanden behoeven negatieve effecten op de instandhoudingsdoelstellingen van deze Natura2000-gebieden niet te worden verwacht.

afbeelding "i_NL.IMRO.1954.OVaalbekerweg73-ON01_0024.png"

Ligging projectlocatie t.o.v. Natura2000 gebieden

6.5.4 Flora en fauna

In de Wet natuurbescherming zijn de onderdelen uit de Europese Habitatrichtlijn en onder meer de Vogelrichtlijn, die de bescherming van soorten betreft, geïmplementeerd. De wet biedt ook het kader voor de bescherming van inheemse dier- en plantensoorten die geen bescherming genieten op grond van de Habitatrichtlijn. Er geldt een aantal verboden ter bescherming van beschermde dier- en plantensoorten.

Gelet op de ligging van onderhavig projectgebied in een bebouwingslint met intensief gebruik en de directe nabijheid van de doorgaande weg N298, wordt de kans op aanwezigheid van beschermde soorten flora en/of fauna nihil geacht. Vanwege de zeer bouwvallige staat van onderhavig bebouwing en grote openingen (zowel in de gevels als daken), is deze ongeschikt als verblijfplaats voor vleermuizen vanwege het ontbreken van tochtvrije ruimten. Bovendien zijn diverse (lege) vleermuisnesten aanwezig. Overige flora en/of fauna zijn niet te verwachten: het buitenterrein is soortenarm en bestaat overwegend uit ingezaaid gras. Broedvogel(ne)s(ten) zijn niet aangetroffen.

afbeelding "i_NL.IMRO.1954.OVaalbekerweg73-ON01_0025.png"

Foto's bestaande toestand dak

afbeelding "i_NL.IMRO.1954.OVaalbekerweg73-ON01_0026.png" Lege wespennesten

Ongeacht vorenstaande voorziet artikel 1.11 van de Wet natuurbescherming in een algemene verplichting voor een ieder om voldoende zorg te dragen voor Natura 2000-gebieden, bijzondere nationale natuurgebieden en voor in het wild levende dieren en planten en hun directe leefomgeving.

6.5.5 Conclusie natuurbescherming

Gelet op vorenstaande vormt het aspect natuurbescherming geen belemmeringen voor onderhavig project.

Hoofdstuk 7 Afweging van belangen en conclusie

Het herbouwen van het oorspronkelijke volume van de hoeve buiten het huidige bouwvlak en het realiseren van in totaal zes wooneenheden binnen dit volume is strijdig met het vigerende bestemmingsplan 'Kleine Kernen'. De gemeente Beekdaelen heeft kenbaar gemaakt in te kunnen stemmen met het afwijken van het bestemmingsplan. Teneinde het bouwplan te kunnen vergunnen dient een projectafwijkingsprocedure te worden doorlopen. Daartoe is voorliggende ruimtelijke onderbouwing opgesteld.

Tegen de realisering van het bouwplan bestaat vanuit ruimtelijk en stedenbouwkundig oogpunt geen bezwaar aangezien aan de volgende uitgangspunten c.q. randvoorwaarden wordt voldaan:

  • het plan is niet strijdig met het Rijks-, provinciale en regionale beleid;
  • het plan past binnen het gemeentelijke beleid en voldoet aan de door de gemeente gestelde randvoorwaarden;
  • door de realisering van het plan treden er geen conflicterende belangen op ten aanzien van bedrijven en woningen in de omgeving;
  • de milieuaspecten bodem, geluid, milieuzonering, luchtkwaliteit en externe veiligheid vormen geen beletsel voor de realisatie van het plan;
  • het plan heeft geen negatieve invloed op de aspecten archeologie, kabels en leidingen, verkeer en parkeren, waterhuishouding, flora en fauna en natuur en landschap;

Op grond van vorenstaande overwegingen kan worden geconcludeerd dat bij realisatie van het voorgenomen bouwplan in strijd met de geldende planologisch-juridische regels sprake is van een goede ruimtelijke ordening.