direct naar inhoud van Toelichting
Plan: Gogelstraat 3, Vught
Status: vastgesteld
Plantype: bestemmingsplan
IMRO-idn: NL.IMRO.0865.vghBPGogelstr3-VG01

Toelichting

Hoofdstuk 1 Inleiding

Voorliggend rapport betreft het bestemmingsplan "Gogelstraat 3, Vught" van de gemeente Vught.

1.1 Aanleiding en doel

Op het perceel Gogelstraat 3 te Vught staat een complex van gebouwen waarin voorheen een wereldwinkel, een sociale werkplaats en een woning gevestigd waren. Het perceel is nagenoeg geheel bebouwd. In overleg met een particuliere zorgaanbieder wenst initiatiefnemer Vrijborg de bestaande bebouwing te slopen en te vervangen door een nieuw gebouw ten behoeve van een woonzorgvoorziening met 19 kamers voor ouderen met een intensieve zorgbehoefte zoals dementie (24-uurs zorg) en 2 wooneenheden voor echtparen met een zorgbehoefte (aanleunwoningen).

Het initiatief kan niet worden gerealiseerd op basis van de vigerende bestemmingsplannen "Schoonveld" (2005) respectievelijk "Schoonveld 2015". De gemeente Vught heeft echter aangegeven medewerking te willen verlenen aan het initiatief door middel van een herziening van het bestemmingsplan.

Voorliggend bestemmingsplan bevat de ruimtelijke onderbouwing voor het toestaan van een kleinschalige woon/zorgvoorziening met 19 appartementen voor ouderen met een intensieve zorgbehoefte en 2 aanleunwoningen.

1.2 Ligging en kadastrale begrenzing

Onderstaande afbeelding geeft de topografische situatie weer.

afbeelding "i_NL.IMRO.0865.vghBPGogelstr3-VG01_0001.jpg"

TOPOGRAFISCHE SITUATIE

Onderstaande afbeelding geeft de kadastrale situatie weer. Tevens is de plangrens van voorliggend bestemmingsplan ingetekend.

afbeelding "i_NL.IMRO.0865.vghBPGogelstr3-VG01_0002.jpg"

KADASTRALE SITUATIE

De grond is kadastraal bekend bij de gemeente Vught, sectie L, nummer 2471

De oppervlakte van het plangebied bedraagt 1794 m². Vrijborg Vastgoedontwikkeling heeft deze grondpositie recent verworven.

1.3 Vigerend bestemmingsplan

Ter plaatse van het plangebied vigeert het bestemmingsplan ''Schoonveld 2015'' vastgesteld door de gemeenteraad op 17 december 2015 en als gevolg van een gerechtelijke uitspraak deels ook nog bestemmingsplan ''Schoonveld'' vastgesteld door de gemeenteraad op 7 oktober 2004. Daarnaast geldt het bestemmingsplan "Parapluplan Parkeren".

1.3.1 Bestemmingsplan "Schoonveld 2015"

Onderstaande afbeelding geeft een uitsnede van de vigerende verbeelding.

afbeelding "i_NL.IMRO.0865.vghBPGogelstr3-VG01_0003.jpg"

UITSNEDE VERBEELDING BESTEMMINGSPLAN "SCHOONVELD 2015"

Ter plaatse van het noordelijke deel van het plangebied geldt de enkelbestemming 'Wonen'. Deze gronden zijn aangewezen voor wonen en voor ondergeschikte voorzieningen zoals verkeers- en groenvoorzieningen, voorzieningen van algemeen nut, water, waterhuishoudkundige voorzieningen, tuinen, erven en terreinen.

In het plangebied ligt de aanduiding 'bouwvlak'. Het hoofdgebouw moet binnen het bouwvlak worden gebouwd. De goothoogte mag niet meer dan 7 meter bedragen en de bouwhoogte niet meer dan 12 meter.

Het gebied achter het bouwvlak heeft de bouwaanduiding 'bijgebouwen'. Op deze gronden mogen bijgebouwen worden gebouwd met een goot- en bouwhoogte van 3,5 respectievelijk 5 meter.

Het zuidelijke deel heeft de bestemming 'Gemengd'. In het kader van een beroepszaak heeft de Afdeling bestuursrechtspraak van de Raad van State echter een uitspraak gedaan waarin deze bestemming te niet wordt gedaan. Dit leidt tot herleving van het bestemmingsplan ''Schoonveld'' op deze locatie.

1.3.2 Bestemmingsplan "Schoonveld" (2005)

Onderstaande afbeelding geeft een uitsnede van de verbeelding van het bestemmingsplan "Schoonveld".

afbeelding "i_NL.IMRO.0865.vghBPGogelstr3-VG01_0004.jpg"

UITSNEDE VERBEELDING BESTEMMINGSPLAN "SCHOONVELD" (2005)

Ter plaatse van de genoemde gerechtelijke uitspraak geldt de enkelbestemming 'Maatschappelijke doeleinden'. De gronden voor 'Maatschappelijke doeleinden' zijn onder meer aangewezen voor religieuze, onderwijskundige, sociaal-culturele- en overheidsdoeleinden en de daarbij behorende voorzieningen.

Ten behoeve van een groot deel van het plangebied ligt de aanduiding 'bouwvlak'. Gebouwen moeten in het bouwvlak worden gebouwd, waarbij het bouwvlak geheel mag worden bebouwd. Het aantal bouwlagen mag niet meer bedragen dan één. Ter hoogte van het hoofdgebouw is in dit vigerende bestemmingsplan een apart bouwvlak opgenomen, die een afwijkende bouwhoogte kent.

Over het plangebied ligt de gebiedsaanduiding 'Zone externe veiligheid spoorwegdoeleinden', die een aandachtsgebied voor groepsrisico van 0 tot 200 meter uit de as van het dichtstbijzijnde spoor aanduidt. In paragraaf 5.1.4 wordt nader ingegaan op het aspect externe veiligheid.

1.3.3 Bestemmingsplan "Parapluplan Parkeren"

Op 6 juni 2018 heeft de gemeente Vught het bestemmingsplan "Parapluplan Parkeren" vastgesteld, waarin het gemeentelijke parkeerbeleid is vastgelegd. Toepassing van het parkeerbeleid op onderhavig plan is opgenomen in paragraaf 3.2.

Hoofdstuk 2 Gebiedsanalyse

Dit hoofdstuk geeft een ruimtelijk-functionele analyse van het plangebied. Onderstaande afbeelding geeft de bestaande toestand van de directe omgeving en het plangebied weer.

afbeelding "i_NL.IMRO.0865.vghBPGogelstr3-VG01_0005.jpg"

PLANGEBIED EN DIRECTE OMGEVING

2.1 Bebouwing en functies

Het plangebied is onderdeel van het stedenbouwkundige blok Van Voorst tot Voorststraat/Gogelstraat - Helvoirtseweg - Van Miertstraat - Versterplein, in het noordelijke deel van de wijk Schoonveld. Het stedenbouwkundige blok bestaat voornamelijk uit grondgebonden woningen. Daarnaast is er sprake van enkele kleinschalige bedrijfsactiviteiten of maatschappelijke functies. De bebouwing bestaat uit individuele en geschakelde panden van één of twee bouwlagen met kap. Tegenover het plangebied ligt een kleinschalig winkelgebied en er ligt tevens een gezondheidscentrum aan het Versterplein.

De bebouwing in het plangebied en het gebruik daarvan is afwijkend. Aan de straatzijde staat een gebouwdeel van twee lagen met kap met daarin een woning. Het perceel daarachter is grotendeels bebouwd met een gebouw met één bouwlaag. Hierin waren voorheen een wereldwinkel (170 m²), een sociale werkplaats (1000 m²) en een woning gevestigd. Deze activiteiten zijn recent beëindigd op deze locatie. Sindsdien staan de panden leeg.

2.2 Ontsluiting

Het plangebied wordt ontsloten door de Gogelstraat. De Gogelstraat is een zijstraat van de Van Voorst tot Voorststraat die een meer verbindende functie heeft. De Gogelstraat ontsluit naast de aanliggende percelen tevens het parkeerterreintje tegenover het plangebied.

2.3 Groen en water

De Gogelstraat heeft een groen karakter, met name gevormd door de grote bomen in een laanstructuur. Zoals vermeld is het plangebied grotendeels bebouwd. Aan de achterzijde van de bebouwing ligt een binnentuin met een oppervlakte van circa 500 m². Voorts ontsluit het gebouw nog een kleine patiotuin.
In het plangebied en in de directe omgeving is geen oppervlaktewater aanwezig.

Hoofdstuk 3 Plan

In dit hoofdstuk is het project beschreven. Aan de orde komen de bebouwing en functies, verkeer en parkeren, en groen en water.

3.1 Bebouwing en functies

Het karakteristieke jaren '30 gebouw aan de straatzijde blijft behouden. De overige delen van de bebouwing in het plangebied wordt volledig gesloopt. Vervolgens wordt achter de voorbouw een nieuw gebouw gerealiseerd ten behoeve van een woonzorgvoorziening met 19 kamers voor alleenstaande ouderen met een intensieve zorgbehoefte (24-uurs zorg) en 2 wooneenheden voor echtparen met een zorgbehoefte (aanleunwoningen). Onderstaande afbeeldingen geven daarvan impressies.

afbeelding "i_NL.IMRO.0865.vghBPGogelstr3-VG01_0006.jpg"

afbeelding "i_NL.IMRO.0865.vghBPGogelstr3-VG01_0007.jpg"

3D-IMPRESSIES NIEUWBOUW (BRON: H-KWADRAAT ARCHITECTEN)

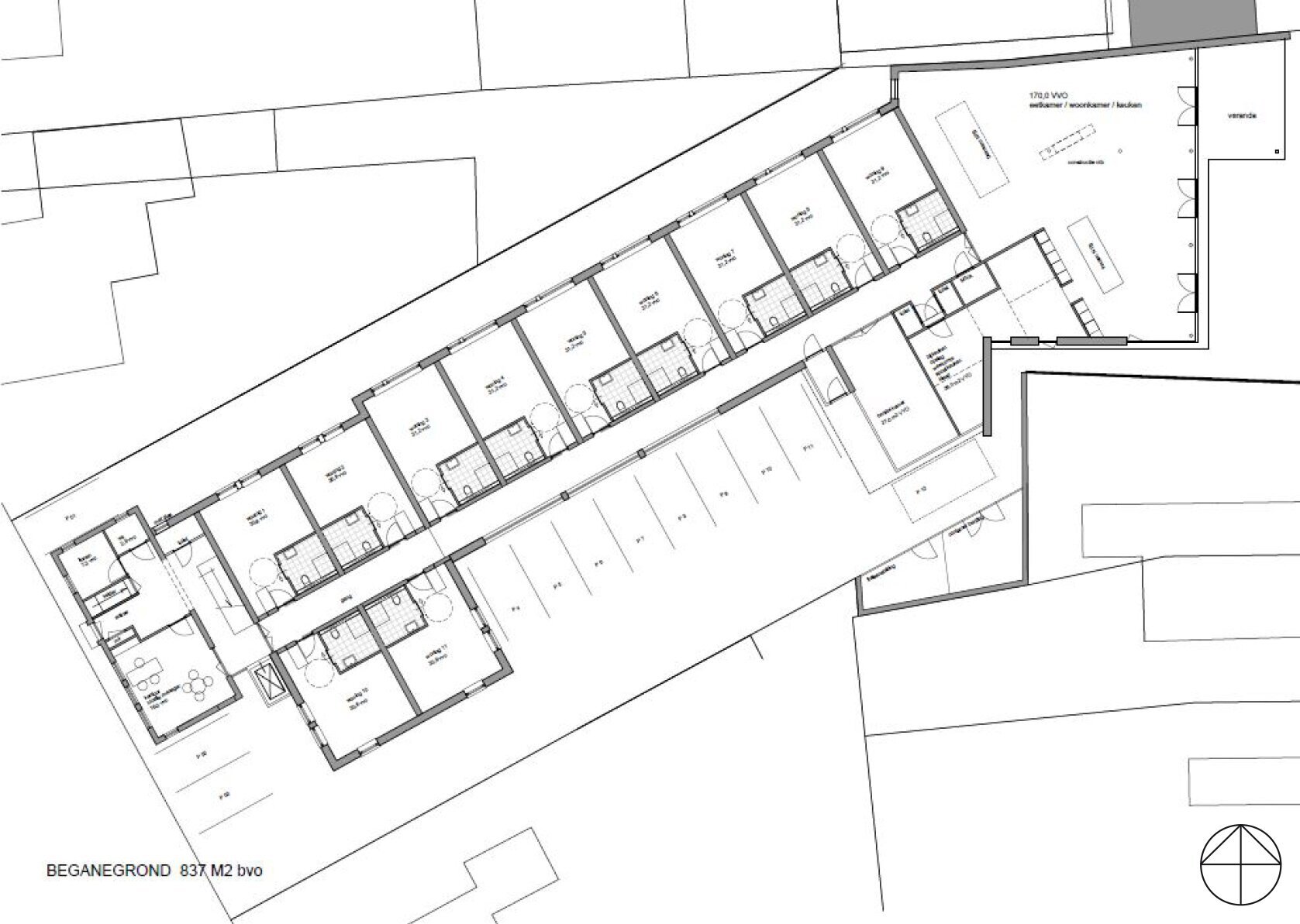
afbeelding "i_NL.IMRO.0865.vghBPGogelstr3-VG01_0008.jpg"

PLATTEGROND NIEUWBOUW (BRON: H-KWADRAAT ARCHITECTEN)

Het bouwplan bestaat uit drie delen:

  • 1. Zoals aangegeven blijft het karakteristieke jaren '30 gebouw aan de straatzijde behouden. Dit deel wordt ingericht met facilitaire ruimten op de begane grond, en een aanleunwoning op elk van beide verdiepingen. Het aanzicht vanaf de straat blijft daarmee onveranderd.
  • 2. De voorbouw wordt aan de achterzijde over twee bouwlagen met kap uitgebreid. Door dezelfde gevelkenmerken te gebruiken ontstaat één geheel met de voorbouw. Dit bouwdeel omvat 12 woonzorgeenheden.
    Er is enige afstand tot de noordelijke perceelgrens aangehouden voor het aanleggen van een groenstrook/tuin. Hierdoor wordt de schaduwwerking in de tuin van het aangrenzende perceel zoveel mogelijk beperkt. Aan de zuidzijde is ruimte voor het aanleggen van de inrit met de parkeerplaatsen.
  • 3. Het middendeel komt uit op de achterbouw van één bouwlaag met plat dak. In dit gebouwdeel zijn nog eens zeven woonzorgeenheden, de familiekamer, de gezamenlijke woonkamer en gemeenschappelijke open keuken gesitueerd. De veranda komt uit op de omsloten tuin.

De woonzorgeenheden zijn te omschrijven als kleine studio's met afmetingen van een forse hotelkamer. Het dagelijks leven vindt met name plaats in de gezamenlijke woonkamer, open leefkeuken en de omsloten binnentuin. Indien gewenst kan gebruik gemaakt worden van de familiekamer.

De verandering van het nieuwe bouwplan op de schaduwwerking op de omgeving zijn weergegeven de bezonningsstudie, die als bijlage 1 is bijgevoegd. In de bezonningsstudie zijn de planologisch maximale bouwmogelijkheden van de geldende bestemmingsplannen vergelijken met die van voorliggend bestemmingsplan. Daaruit blijkt dat er geen onaanvaardbare verslechtering ontstaat met betrekking tot bezonning/schaduwwerking. En dat de voorgenomen ontwikkeling daarmee past daarmee wat betreft dit aspect in deze omgeving.

3.2 Verkeer en parkeren

3.2.1 Verkeersgeneratie

De realisatie van een woonzorgvoorziening heeft invloed op de verkeersgeneratie. De digitale publicatie "ASVV 2012'' (CROW) bevat kencijfers voor de verkeersgeneratie van diverse functies. De gemeente Vught wordt aangeduid als matig stedelijk gebied, waarin de locatie van het plangebied binnen de gemeente Vught tot de rest van de bebouwde kom behoort.

3.2.1.1 Bestaande situatie

Binnen het plangebied bestaat in de bestaande situatie het aantal verkeersbewegingen uit drie onderdelen: de woning, de sociale werkplaats (arbeidsintensief/bezoekersextensief) en de wereldwinkel. In de tabel hieronder is de berekening van de verkeersgeneratie per etmaal uiteengezet voor de verschillende onderdelen.

onderdeel   verkeersgeneratie   totaal  
woning   5,2 tot 6,0 mvt/woning   5,2 - 6,0 mvt  
sociale werkplaats   2,1 tot 2,6 mvt/100 m² bvo   21,0 - 26,0 mvt  
wereldwinkel   3,5 tot 5,5 mvt/100 m² bvo   6,0 - 9,4 mvt  
totaal     32,2 - 41,4 mvt  
3.2.1.2 Nieuwe situatie

Binnen het plangebied bestaat in de nieuwe situatie het aantal verkeersbewegingen uit drie onderdelen:

  • 1. Zoals aangegeven betreft het een woonzorgvoorziening voor dementerende ouderen. Deze ouderen zijn gebaat bij rust en regelmaat. Het is bezoek is beperkt; er zijn geen bezoekuren. Uit ervaring met vergelijkbare voorzieningen volgt dat een bewoner gemiddeld twee keer per week bezoek krijgt (van maximaal twee personen per keer). Twee bezoeken per persoon levert 38 bezoeken voor de woonzorgeenheden, ofwel gemiddeld vijf à zes bezoeken per dag. Dit levert maximaal 12 verkeersbewegingen per etmaal op.
  • 2. Het kencijfer voor de verkeersgeneratie van aanleunwoningen bedraagt 2,1 tot 2,8 motorvoertuigbewegingen per etmaal. Voor 2 aanleunwoningen bedraagt de verkeersgeneratie maximaal circa 6 verkeersbewegingen per etmaal.
  • 3. In de woonzorgvoorziening is 24 uur per dag personeel aanwezig in shifts van twee verzorgenden gedurende acht uur. Dit betekent dagelijks zes personeelsleden die zorgen voor 12 verkeersbewegingen. Tijdens de drie eetmomenten is een kok aanwezig. Deze kok zorgt voor zes verkeersbewegingen per etmaal. Gezamenlijk zorgt het personeel voor 18 verkeersbewegingen per etmaal.
  • 4. Dagelijks wordt de woonzorgvoorziening bevoorraad door twee tot vier leveranciers. Dit zorgt in een worst-case scenario voor acht verkeersbewegingen per dag.

Gezamenlijk zorgt de nieuwe situatie voor maximaal circa 44 verkeersbewegingen per etmaal

Conclusie
De woonzorgvoorziening heeft een verkeersgeneratie van maximaal circa 44 verkeersbewegingen per etmaal. Dit is vergelijkbaar met de maximale verkeersgeneratie van de huidige functies. Er is sprake van een verkeerskundig aanvaardbare situatie.

3.2.2 Ontsluiting

In de nieuwe situatie zal het plangebied gebruik blijven maken van de bestaande ontsluiting. De capaciteit van de Gogelstraat en omliggende straten is voldoende om het verkeer te kunnen verwerken.

3.2.3 Parkeren

Het voorzien in voldoende parkeerplaatsen is noodzakelijk voor het goed functioneren van het initiatief en voorkomt overlast voor de omgeving. De gemeente Vught heeft hiertoe het bestemmingsplan ''Parapluplan Parkeren'' vastgesteld. Daarin wordt de gemeentelijke nota

"Parkeerbeleid en Parkeernota 2013-2022" van toepassing verklaard op het gehele

grondgebied van Vught. Echter geeft de parkeernota geen normen voor een woonzorgvoorziening, waardoor gebruik is gemaakt van de kengetallen uit de publicatie ''ASVV 2012''.

Het project behoort tot de categorie 'Verpleeg- en verzorgingstehuis', waarvoor kencijfers van 0,5 tot 0,7 parkeerplaatsen per wooneenheid (inclusief parkeren voor personeel en bezoek) zijn opgenomen. Omdat geen van de bewoners een eigen auto bezit en het bezoek gereguleerd is (bezoekrooster) kan de onderkant van het kencijfer (0,5) worden aangehouden als norm.
De parkeernorm voor de aanleunwoningen bedraagt 0,9 parkeerplaatsen per woning.

Voor het project zijn (19 x 0,5 + 2 x 0,9 =) 11,3 (afgerond 12) parkeerplaatsen nodig, die op eigen terrein moeten worden aangelegd. Het terrein biedt hiervoor voldoende ruimte, zoals blijkt uit onderstaande afbeelding.

afbeelding "i_NL.IMRO.0865.vghBPGogelstr3-VG01_0009.jpg"

SITUERING PARKEERPLAATSEN (BRON: VRIJBORG)

3.3 Groen en water

Het achterste deel van het terrein blijft in gebruik als tuin. Deze wordt zodanig ingericht en omsloten dat er een veilige verblijfsomgeving ontstaat voor de bewoners. Voorts worden op de perceelgrenzen hagen aangebracht, die voor een groene inpassing zorgen.
In het plangebied wordt geen oppervlaktewater aangelegd.

Hoofdstuk 4 Beleid

In dit hoofdstuk wordt het plan getoetst aan het relevante vigerende beleid. Achtereenvolgens komt aan de orde het beleid op:

  • nationaal niveau;
  • provinciaal niveau;
  • gemeentelijk niveau.

4.1 Nationaal niveau

4.1.1 Structuurvisie Infrastructuur en Ruimte

In 2012 heeft de Minister van Infrastructuur en Milieu de Structuurvisie Infrastructuur en Ruimte (SVIR) ondertekend. De SVIR geeft een integraal kader voor het ruimtelijk beleid en mobiliteitsbeleid op rijksniveau, en is de 'kapstok' voor bestaand en nieuw rijksbeleid met ruimtelijke consequenties. In de SVIR worden de ambities van het Rijk tot 2040 geschetst, alsmede doelen, belangen en opgaven tot 2028. In de SVIR kiest het Rijk voor minder nationale belangen en eenvoudiger regelgeving. De reeds ingezette trend om aan de provincies en gemeenten ruimte te laten inzake de ruimtelijke ontwikkelingen wordt versterkt in de SVIR.

De SVIR bevat 13 nationale belangen die worden beschermd middels het Besluit algemene regels ruimtelijke ordening. Het gaat onder meer om militaire objecten en terreinen, de grote rivieren en de ecologische hoofdstructuur. Voor onderhavig plan zijn echter geen van de nationale belangen aan de orde. Er hoeft daarom ook geen toetsing aan het Besluit algemene regels ruimtelijke ordening plaats te vinden.

4.1.2 Besluit ruimtelijke ordening: Ladder voor Duurzame Verstedelijking

Met het doel de ruimte zorgvuldig en duurzaam te gebruiken, is de Ladder voor Duurzame Verstedelijking opgesteld. Deze is verankerd in artikel 3.1.6 van het Besluit ruimtelijke ordening (versie 1 juli 2017). Bij nieuwe stedelijke ontwikkelingen moet worden aangetoond dat deze voorzien in een behoefte, en moet - in geval van de ontwikkeling buiten bestaand stedelijk gebied plaatsvindt - een motivering worden opgenomen waarom niet binnen het bestaand stedelijk gebied in die behoefte kan worden voorzien.

Het plan omvat meer dan twaalf wooneenheden en wordt daarom als een stedelijke ontwikkeling gezien. De behoefte aan kleinschalige woonzorgvoorzieningen is opgenomen in het gemeentelijke woningbouwprogramma (zie paragraaf 4.3.2). De bouw van een woonzorgvilla komt tegemoet aan de specifieke behoefte aan kleinschalige voorzieningen die beschreven zijn in de beleidsdoelstellingen van de woonvisie.

Conclusie
Het plan voldoet aan het Besluit ruimtelijke ordening en de Ladder voor Duurzame Verstedelijking.

4.2 Provinciaal niveau

Het provinciale ruimtelijk beleid is vastgelegd in de nota's:

  • Omgevingsvisie Noord-Brabant;
  • Interim Omgevingsverordening Noord-Brabant.

Het plan wordt aan deze nota's getoetst.

4.2.1 Omgevingsvisie Noord-Brabant

In voorbereiding op de inwerkingtreding van de Omgevingswet heeft de provincie de Omgevingsvisie Noord-Brabant vastgesteld (14 december 2018). Deze omgevingsvisie bevat de visie van het provinciale bestuur op de Brabantse leefomgeving van de toekomst (2050). Naar de uitgangspunten van de Omgevingswet zijn daarbij geen routes naar de gestelde doelen vastgelegd, omdat daarmee een beter samenspel en draagvlak kunnen ontstaan. De Omgevingsvisie zal onder meer de Structuurvisie Ruimtelijke Ordening gaan vervangen.

De Omgevingsvisie kent één basisopgave: "werken aan veiligheid, gezondheid en omgevingskwaliteit". Elke ruimtelijke ontwikkeling moet - ongeacht de omvang - hieraan bijdragen. In vier hoofdopgaven worden nadere accenten gelegd:

  • 1. werken aan de Brabantse energietransitie;
  • 2. werken aan een klimaatproof Brabant;
  • 3. werken aan een slimme netwerkstad;
  • 4. werken aan een concurrerende, duurzame economie.

Analyse
Onderhavig plan betreft de bouw een woonzorgvoorziening met 19 kamers voor ouderen met een intensieve zorgbehoefte zoals dementie (24-uurs zorg) en 2 wooneenheden voor echtparen met een zorgbehoefte (aanleunwoningen). Deze relatief kleinschalige ontwikkeling draagt op de volgende wijze bij aan de 'grote' hoofdopgaven.

ad 1.   De energietransitie houdt enerzijds in het verminderen van het energieverbruik en anderzijds de verduurzaming van de energie. De nieuwe woonzorgvoorziening binnen het plangebied zal minstens aan de in het Bouwbesluit en het gemeentelijke duurzaamheidsbeleid opgenomen energieprestatie-eisen moeten voldoen. Nadere uitwerking hiervan zal plaatsvinden in het kader van het bouwplan voor de woonzorgvoorziening. Daar komt dan ook de verduurzaming van de energie aan bod, bijvoorbeeld door het aanleggen van een eigen energievoorziening.  
ad 2.   Eén van de onderdelen van een klimaatproof Brabant is het zorgen voor een klimaatbestendige en waterrobuuste inrichting. Onderhavig plan wordt gerealiseerd op een plek die hoog en droog genoeg is. Door infiltratie van het hemelwater ter plaatse wordt voorkomen dat er een versnelde afvoer plaatsvindt. Het ontwerp van de woonzorgvoorziening en de inrichting van het perceel kunnen voorts een bijdrage leveren aan de klimaatadaptatie. Dit wordt in het bouwplan nader uitgewerkt.  
ad 3.   Een duurzame verstedelijking draagt bij aan het komen tot een slimme netwerkstad. Uitbreiding van het bestaand stedelijk gebied is alleen wenselijk vanuit kwalitatieve overwegingen en bij een concrete marktvraag. Het plan betreft een vorm van inbreiding.  
ad 4.   Onderdeel van een concurrerende en duurzame economie is het voorzien in een aantrekkelijk vestigingsklimaat. Door een zorgvuldige inpassing van de woonzorgvoorziening wordt een bijdrage geleverd aan de leefomgeving en daarmee aan het vestigingsklimaat.  

Conclusie
Het plan geeft invulling aan de opgaven van de Omgevingsvisie Noord-Brabant.

4.2.2 Interim Omgevingsverordening Noord-Brabant

De Interim Omgevingsverordening bevat de provinciale regels en randvoorwaarden met een bindende werking over de fysieke leefomgeving. Deze vloeien voort uit de in de Omgevingsvisie genoemde doelen. De Interim Omgevingsverordening is opgesteld naar de gedachtegang van de nieuwe Omgevingswet die naar verwachting op 1 januari 2021 in werking zal treden.

De Interim omgevingsverordening (IOV) heeft een opbouw naar de verschillende doelgroepen. Voor onderhavig plan zijn in beginsel uitsluitend de in hoofdstuk 3 opgenomen "Instructieregels aan gemeenten" aan de orde. De afdelingen in dat hoofdstuk zijn als volgt te onderscheiden (waarbij de volgorde is omgekeerd ten behoeve van vergroting van de toepasbaarheid):

  • afdelingen 3.5 tot en met 3.7: de toedeling van functies;
  • afdelingen 3.2 tot en met 3.4: de bescherming van gebiedskenmerken;
  • afdeling 3.1: de basisprincipes voor een evenwichtige toedeling van functies.
4.2.2.1 De toedeling van functies

Het plangebied is onderdeel van het stedelijke gebied. In beginsel zijn daar conform artikel 3.42 IOV woningen toegestaan, mits:

  • a. de ontwikkeling past binnen de regionale afspraken, bedoeld in afdeling 5.4 Regionaal samenwerken;
  • b. het een duurzame stedelijke ontwikkeling is, waarbij:
    • 1. een goede omgevingskwaliteit met een veilige en gezonde leefomgeving wordt bevorderd;
    • 2. zorgvuldig ruimtegebruik wordt bevorderd, waaronder de transformatie van verouderde stedelijke gebieden;
    • 3. optimaal invulling aan de mogelijkheden voor productie en gebruik van duurzame energie wordt gegeven;
    • 4. rekening met klimaatverandering wordt gehouden, waaronder het tegengaan van hittestress en voldoende ruimte voor de opvang van water;
    • 5. optimaal invulling aan de mogelijkheden voor duurzame mobiliteit wordt gegeven;
    • 6. wordt bijgedragen aan een duurzame, concurrerende economie.

ad a.   Onderhavig planvoornemen heeft een geringe omvang, waardoor het niet is opgenomen binnen de regionale afspraken.  
ad b.1   Onderhavig planvoornemen voldoet aan alle uitvoeringsaspecten. Deze worden nader toegelicht in hoofdstuk 5.  
ad b.2   Het plan wordt gerealiseerd als vorm van inbreiding waarbij een verouderd, leegstaand pand wordt gesloopt en hiervoor een nieuw pand wordt gerealiseerd.  
ad b.3   Onderhavig planvoornemen biedt met de realisatie vaneen woonzorgcomplex mogelijkheden voor duurzaam gebruik van de bebouwing. Dit wordt verder uitgewerkt in het bouwplan behorende bij dit planvoornemen.  
ad b.4   Onderhavig planvoornemen voldoet aan de in hoofdstuk 5 benoemde eisen voor de opvang en afvoer van hemelwater. Hiermee wordt voldaan aan dit sublid.  
ad b.5   Het plan is klein van omvang en heeft op zichzelf geen invloed op het mobiliteitsnetwerk. Het plan ligt op korte afstand van het centrum van Vught en de aanwezige voorzieningen. Het plangebied is relatief goed bereikbaar via het openbaar vervoer.  
ad b.6   Onderhavig planvoornemen zorgt voor een stedelijke inbreiding. Hierbij draagt dit planvoornemen bij aan de continuïteit van de kern Vught als woon- en verblijfslocatie.  
4.2.2.2 De bescherming van gebiedskenmerken

Ter plaatse van het plangebied geldt het gebiedskenmerk 'Stalderingsgebied'. Het artikel 3.52 stelt regels aangaande de ontwikkeling van veehouderijen. Onderhavig plan omvat geen veehouderijen. Er hoeft derhalve geen nadere toetsing plaats te vinden.

4.2.2.3 De basisprincipes voor een evenwichtige toedeling van functies

Uit artikel 3.5 komt naar voren dat aan een drietal aspecten getoetst moet worden om een goede omgevingskwaliteit en een veilige, gezonde leefomgeving te waarborgen. Dit zijn de volgende aspecten:

  • zorgvuldig ruimtegebruik (artikel 3.6);
  • de waarden in een gebied met toepassing van de lagenbenadering (artikel 3.7);
  • meerwaardecreatie (artikel 3.8).
4.2.2.3.1 Zorgvuldig ruimtegebruik

Het plan betreft een vorm van inbreiding. Hierdoor is sprake van zorgvuldig ruimtegebruik.

4.2.2.3.2 Toepassing van de lagenbenadering

De toepassing van de lagenbenadering omvat het effect van de ontwikkeling op de lagen in onderlinge wisselwerking met elkaar en het actief benutten van de factor tijd. De lagenbenadering omvat de effecten op:

  • de ondergrond: zoals de bodem, het grondwater en archeologische waarden;
  • de netwerklaag: zoals infrastructuur, natuurnetwerk, energienetwerk, waterwegen waaronder een goede, multimodale afwikkeling van het personen- en goederenvervoer.
  • de occupatielaag: zoals cultuurhistorische en landschappelijke waarden, de omvang van de functie en de bebouwing, de effecten op bestaande en toekomstige functies, de effecten op volksgezondheid, veiligheid en milieu.

Door de factor tijd actief te benutten wordt rekening gehouden met de herkomstwaarde, vanuit het verleden, de (on)omkeerbaarheid van optredende effecten en de toekomstwaarde gelet op duurzaamheid en toekomstbestendigheid.

Het plan zorgt niet voor een wijziging in de eerste twee lagen. Doordat een woonzorgvoorziening wordt toegevoegd leidt dit tot een beperkte aanpassing van de occupatielaag. Het toevoegen van de woonzorgvoorziening, als vorm van inbreiding waarbij een verouderd, leegstaand pand wordt gesloopt, draagt bij aan het dorp Vught als woon- en verblijfslocatie en de woningbehoefte. Hiermee wordt voldaan aan dit aspect.

4.2.2.3.3 Meerwaardecreatie

Meerwaardecreatie omvat een evenwichtige benadering van de economische, ecologische en sociale aspecten die in een gebied en bij een ontwikkeling zijn betrokken, waaronder:

  • de mogelijkheid om opgaven en ontwikkelingen te combineren waardoor er meerwaarde ontstaat;
  • de bijdrage van een ontwikkeling aan andere opgaven en belangen dan die rechtstreeks met de ontwikkeling gemoeid zijn.

Het plan zorgt voor diverse vormen van meerwaarde:

  • De bouw van een woonzorgvoorziening voorziet in een behoefte.
  • De bouw van een woonzorgvoorziening leidt tot uitgaven binnen de directe omgeving, wat de economische positie van Vught ten goede komt.
  • De bouw van een woonzorgvoorziening leidt tot de vraag naar werkgelegenheid binnen de kern Vught.
4.2.2.4 Conclusie

Het plan voldoet aan het beleid van de Interim Omgevingsverordening.

4.3 Gemeentelijk niveau

4.3.1 Structuurvisie Vught

Op 19 december 2013 heeft de gemeenteraad de Structuurvisie Vught vastgesteld, waarin de gemeentelijke ruimtelijke structuren voor een periode van 10 tot 15 jaar is vastgelegd.

Het plangebied is onderdeel van de kern van Vught. De structuurvisie voorziet in het aanpakken van verouderde plekken, het vooroplopen in het bedenken en toepassen van nieuwe woonzorgstructuren in samenspraak met professionele partners en bewoners, de samenwerking van zorginstellingen bevorderen bij uitvoering van beleid en het kijken naar de geschiktheid van de woningen voor oudere doelgroepen om de bevolkingssamenstelling in wijken sterker te mixen.

Analyse

Het plan omvat de sloop van de bestaande bebouwing en deze te vervangen door een nieuw gebouw ten behoeve van een woonzorgvoorziening voor dementerende ouderen. Het plan sluit daarmee aan bij de uitgangspunten van de structuurvisie.

Conclusie
Het plan past binnen c.q. is niet in strijd met de Structuurvisie Vught.

4.3.2 Woonvisie Vught 2016

De Woonvisie Vught 2016 bevat het gemeentelijke beleid inzake wonen voor de periode 2016-2020, gekoppeld aan een uitvoeringsprogramma met kwalitatieve en kwantitatieve ambities, activiteiten en maatregelen.

In de woonvisie is onderkend dat de extramuralisering in de GGZ leidt tot een toename van de vraag naar woonvormen met (enige vorm van) bescherming (voordeur achter de voordeur) of betaalbare woningen gecombineerd met begeleiding.
In de gemeente Vught zijn zorginstellingen van oudsher sterk vertegenwoordigd. Er is echter sprake van relatief veel grootschalige voorzieningen, die in kwalitatief opzicht niet altijd aansluiten bij de behoefte. Er is derhalve tevens behoefte aan een kleinschalig aanbod.

Voorliggend plan omvat een kleinschalige woonzorgvoorziening met 19 woonzorgeenheden voor dementerende ouderen en 2 aanleunwoningen. Het plan sluit aan bij de vraag naar beschermd wonen.

Conclusie
Het plan past binnen de Woonvisie Vught 2016.

4.3.3 Welstandsnota 2015

Het welstandsbeleid van de gemeente is opgenomen in de "Welstandsnota gemeente Vught 2e herziening, 2015". Het plangebied valt binnen gebied 5 'Schoonveld', waarvoor welstandsniveau 2 geldt. Deze gebieden hebben een sterke ruimtelijke samenhang. Daarom is er een zorgvuldige afstemming van nieuwe bouwkundige ingrepen nodig. Het plan is besproken met de gemeentelijke welstandscommissie en is onder voorwaarden akkoord bevonden.

4.3.4 Nota Groen

De Nota Groen biedt kaders en uitgangspunten voor de realisatie van een duurzame en karakteristieke groenstructuur in de gemeente Vught. De groenstructuren die zijn vastgelegd zijn een leidraad voor de toekomstige ontwikkelingen in de openbare ruimte en vormen de basis voor de ontwikkeling van de gewenste groenstructuur.

In de Nota Groen zijn ter plaatse van het plangebied geen waardevolle groenstructuren aangeduid. Hierdoor blijven de aangewezen groenstructuren in de kern Vught behouden. Het plan past derhalve binnen c.q. is niet in strijd met de Nota Groen.

Hoofdstuk 5 Uitvoeringsaspecten

In dit hoofdstuk worden de uitvoeringsaspecten beschreven. Achtereenvolgens komen aan de orde:

  • 1. milieu;
  • 2. waarden;
  • 3. waterhuishouding.

5.1 Milieu

Conform het bepaalde in artikel 3.1.6 van het Besluit ruimtelijke ordening moet een toetsing plaatsvinden van de voorgenomen ontwikkelingen aan de relevante milieuaspecten, teneinde het toekomstige gebruik af te stemmen op de omgeving. In deze paragraaf worden de milieuaspecten afzonderlijk beschreven.

5.1.1 Bodemkwaliteit
5.1.1.1 Inleiding

Uitgangspunt is dat de bodemkwaliteit geen onaanvaardbaar risico oplevert voor de gebruikers van de bodem. Bij een ruimtelijke ontwikkeling moet worden beoordeeld of de bodemkwaliteit past bij deze nieuwe functie.

5.1.1.2 Analyse

Om de huidige bodemkwaliteit inzichtelijk te maken heeft SGS Search uit Heeswijk een verkennend bodemonderzoek en een bodeminspectie en monsterneming van asbest in de bodem uitgevoerd: rapport "Verkennend bodem- en asbest in grondonderzoek conform NEN5740 en NEN5707" (19 december 2018, 25.18.00621.1). Het onderzoeksrapport is bijgevoegd als bijlage 1.

SGS Search concludeert dat de analyseresultaten hoogstens lichte verontreinigingen laten zien. Hieruit kan geconcludeerd worden dat de opgestelde hypothese 'niet verdachte locatie' strikt genomen onjuist is. Gezien de relatief lage gehalten en de huidige c.q. toekomstige bestemming van de locatie is er echter geen aanleiding tot het verrichten van een vervolgonderzoek. De bodem is voldoende schoon voor de beoogde ontwikkeling.

PFAS

Voor ruimtelijke ontwikkelingen zijn geen wettelijke normen opgenomen voor PFAS. Het vormt daarom ook geen onderdeel van het verkennend bodemonderzoek conform de NEN5740. Het tijdelijk handelingskader voor PFAS heeft betrekking op het Besluit bodemkwaliteit. Een regeling die betrekking heeft op grondverzet en in het bijzonder het toepassen van grond en baggerspecie, wat niet van toepassing is in de beoogde ontwikkeling. Voor ruimtelijke ontwikkelingen is het van belang dat aangetoond wordt dat er geen sprake is van ernstige bodemverontreiniging. Dit is aangetoond door middel van het uitgevoerde verkennend bodemonderzoek van SGS Search conform NEN5740 en NEN5707. Gezien het voorgaande kan geconcludeerd worden dat het woon- en leefklimaat ter plaatse van het plangebied niet negatief beïnvloed wordt.

5.1.1.3 Conclusie

Het aspect bodemkwaliteit vormt geen planologische belemmering voor het plan.

5.1.2 Trilling
5.1.2.1 Inleiding

In het geval van bouwactiviteiten in de nabijheid van spoorwegen is het gewenst rekening te houden met trillingen als gevolg van het railverkeer. Door vooraf onderzoek uit te voeren kunnen waar nodig bouwkundige maatregelen worden getroffen.

5.1.2.2 Analyse

Cauberg Huygen uit Son heeft een onderzoek uitgevoerd naar het al of niet optreden van een effect als gevolg van trillingen door spoorwegverkeer op de toekomstige bewoners van het woongebouw: rapport "Gogelstraat 3 te Vught; trillingsonderzoek railverkeer" (24 mei 2019, nr. 05091-48046-05). Het onderzoeksrapport is als bijlage 3 bijgevoegd.
Uit het trillingsonderzoek volgt dat er in de dag- en avondperiode wordt voldaan aan de streefwaarden uit de SBR-richtlijn B, maar dat er in de nachtperiode sprake is van een overschrijding van de streefwaarde A2. Daarmee is er een kans op hinder door trillingen. Vormgeving van het bouwplan kan leiden tot reductie van trillingshinder, bijvoorbeeld door het toepassen van een zwaardere fundering of specifieke vloeren.

Omdat er thans nog geen uitgewerkt bouwplan beschikbaar is, doet Cauberg Huygen de aanbeveling om te zijner tijd in het kader van de aanvraag omgevingsvergunning in een vervolgonderzoek een gedetailleerder rekenmodel op te laten stellen door middel van een Eindige Elementen Methode model. Daarmee kan het effect van een maatregel, of een combinatie van maatregelen worden bepaald.
Deze aanbeveling is middels een voorwaardelijke verplichting in de planregels vastgelegd.

5.1.2.3 Conclusie

Het aspect trilling vormt geen planologische belemmering voor het plan.

5.1.3 Bedrijven en milieuzonering
5.1.3.1 Inleiding

Om te voorkomen dat als gevolg van het plan voorzienbare hinder en gevaar door milieubelastende activiteiten optreden moet worden getoetst of:

  • de voorgenomen ontwikkeling van invloed is op omliggende milieugevoelige objecten (woningen etc.) en of de voorgenomen ontwikkeling een belemmering vormt voor de bedrijfsvoering van omliggende inrichtingen;
  • bestaande milieubelastende inrichtingen (bedrijven) van invloed zijn op de voorgenomen ontwikkeling.

Basis voor deze toetsing vormt de handreiking "Bedrijven en milieuzonering" (VNG, Den Haag, 2009), waarin richtafstanden zijn opgenomen voor diverse bedrijfstypen.

5.1.3.2 Analyse

Invloed plan op de omgeving
Het plan betreft woningbouw. Er is derhalve geen sprake van milieutechnische uitstraling op de omgeving.

Invloed omliggende inrichtingen op plan
Hieronder staat een overzicht van de bedrijven in de directe omgeving, de SBI-code, de milieucategorie en de bijbehorende richtafstand, alsmede de werkelijke afstand tot het dichtstbijzijnde milieugevoelige object binnen het plangebied.

bedrijf   SBI-code   categorie   richtafstand   werkelijke afstand  
Van Miertstraat 2a: Jeugd Aktief   94991   2   30 m   30 m  
Van Miertstraat 2b: Opslag goederen   52109   2   30 m   0 m  

Er liggen milieugevoelige onderdelen van het plan binnen de richtafstanden van de omliggende bedrijven. Desalniettemin betreft dit een vorm van opslag van goederen die qua activiteit en ontsluiting aan de achterzijde van het gebouw plaatsvinden. Hierdoor is er geen overlast te verwachten. Het plan vormt geen belemmering voor de omliggende bedrijven.

5.1.3.3 Conclusie

Het aspect bedrijven en milieuzonering vormt geen planologische belemmering voor het plan.

5.1.4 Externe veiligheid
5.1.4.1 Inleiding

Bij het mogelijk maken van nieuwe gevoelige functies is het aspect externe veiligheid van belang. Dit heeft betrekking op inrichtingen, buisleidingen en transportroutes waar een ongeval met gevaarlijke stoffen kan plaatsvinden, met fatale gevolgen voor personen die geen directe relatie hebben tot de risicovolle activiteit.

5.1.4.2 Analyse

Het plan omvat nieuwe kwetsbare objecten. Een toetsing aan het aspect externe veiligheid is derhalve aan de orde. Beoordeeld worden:

  • bedrijven waar opslag of productie van gevaarlijke stoffen plaatsvindt;
  • vervoer van gevaarlijke stoffen via leidingen;
  • vervoer van gevaarlijke stoffen via weg, spoor en water.

Risicovolle bedrijven
De Risicokaart Nederland geeft een overzicht van de ligging van risicovolle activiteiten Hieruit blijkt dat in de omgeving van het plangebied geen bedrijven gevestigd zijn waar opslag of productie van gevaarlijke stoffen plaatsvindt. Een nadere toetsing is niet nodig.

Buisleidingen
Uit de Risicokaart Nederland volgt tevens dat er in de omgeving van het plangebied geen buisleidingen voor het vervoer van gevaarlijke stoffen liggen. Een nadere toetsing is niet nodig.

Transportroutes
De auto(snel)weg A65/N65 en de spoorlijn Tilburg-Vught zijn opgenomen in de Regeling basisnet als transportroute voor gevaarlijke stoffen. Naar verwachting zal ook de spoorlijn Vught-Boxtel als transportroute gaan worden aangemerkt.

Uit de Regeling volgt dat de plaatsgebonden risicocontour (10-6 per jaar) binnen het spoorwegtracé zelf ligt, hetgeen betekent dat er geen belemmeringen zijn in het kader van het plaatsgebonden risico. Er is bovendien geen plasbrandaandachtsgebied.

Het invloedsgebied groepsrisico van wegen heeft een breedte van 880 meter en die van spoorwegen 4000 meter aan weerszijden van het tracé. Daarvan zijn de eerste 200 meter het meest relevant. Het plangebied ligt volledig binnen de drie invloedsgebieden en tevens binnen de 200 meter-zone van de A65/N65 en de spoorlijn Vught-Boxtel. De volgende beoordeling is aan de orde:

  • a. Naar aanleiding van artikel 8 van het Besluit externe veiligheid transportroutes (Bevt) moet vanwege de ligging op minder dan 200 meter tot de transportroute worden ingegaan op:
    • 1. de dichtheid van personen in het invloedsgebied van de transportroute op het tijdstip waarop het plan of besluit wordt vastgesteld, rekening houdend met de in dat gebied reeds aanwezige personen en de personen die in dat gebied op grond van het geldende bestemmingsplan of de geldende bestemmingsplannen of een omgevingsvergunning redelijkerwijs te verwachten zijn, en
    • 2. de als gevolg van het bestemmingsplan redelijkerwijs te verwachten verandering van de dichtheid van personen in het gebied waarop dat plan of die vergunning betrekking heeft.
  • b. Op grond van artikel 7 van het Bevt moet worden ingegaan op de mogelijkheden voor:
    • 1. de bestrijdbaarheid van een zwaar ongeval op deze transportroute(s) en
    • 2. de zelfredzaamheid met betrekking tot nog niet aanwezige (beperkt) kwetsbare objecten binnen het plangebied.
  • c. Overeenkomstig het gestelde in artikel 9 van het Bevt wordt de Veiligheidsregio in de gelegenheid gesteld om hierover een advies uit te brengen.

ad a.   Adviesgroep AVIV uit Enschede heeft een onderzoek uitgevoerd waarin inzicht in de externe veiligheidsrisico's wordt gegeven: rapport "Onderzoek Externe veiligheid / Gogelstraat Vught" (14 februari 2019, nr. 183788). Het onderzoeksrapport is als bijlage 4 bijgevoegd. De bevindingen van AVIV zijn hieronder verwerkt.

Auto(snel)weg A65/N65
Het groepsrisico als gevolg van het transport op de auto(snel)weg A65/N65 bedraagt in zowel de huidige als toekomstige situatie 0,07 keer de oriëntatiewaarde. Vanuit het Bevt kan de verantwoording van het groepsrisico daarom achterwege blijven.

Spoorlijn Vught - Boxtel
Het groepsrisico als gevolg van het transport op de spoorlijn Vught-Boxtel bedraagt in zowel de huidige als toekomstige situatie 0,08 keer de oriëntatiewaarde. Vanuit het Bevt kan de verantwoording van het groepsrisico daarom achterwege blijven.
 
ad b.   Bestrijdbaarheid zwaar ongeval
De maatgevende scenario's voor spoor en weg zijn:
- toxisch scenario: bij een ongeval met toxische gassen en vloeistoffen kan de brandweer, afhankelijk van de stofintensiteit en het groeiscenario, optreden door de gaswolk neer te slaan of te verdunnen/op te nemen met water.
- bleve-scenario: een warme bleve kan bestreden worden door de hittebron (brand) die de tank opwarmt te bestrijden en/of de tank af te laten koelen. De bleve kan na 8 tot 20 minuten optreden. Dit is dan ook de tijd die de brandweer heeft om de brand te blussen en de tank te koelen. De brandweer heeft hier gedurende een langere periode voldoende bluscapaciteit nodig (primaire, secundaire en eventueel tertiaire bluswatervoorzieningen). Het ontstaan van een koude bleve is niet te bestrijden, omdat de tank meteen explodeert. De branden die door de explosie ontstaan moeten wel bestreden worden.

Het plangebied is voldoende bereikbaar voor de hulpdiensten. Primaire en secundaire watervoorzieningen zijn aanwezig.

Zelfredzaamheid
Zelfredzaamheid is de mate waarin personen zich tijdig in veiligheid kunnen brengen zonder hulp van buitenaf. De mogelijkheden tot zelfredzaamheid bestaan globaal uit schuilen of ontkomen, het rampscenario bepaalt welke variant de voorkeur heeft. Zelfredzaamheid is afhankelijk van het maatgevende rampscenario en van de fysieke eigenschappen van zowel het gebied als van de personen daarbinnen.
Bij een calamiteit waarbij toxische vloeistoffen of gassen (kunnen) vrijkomen is het belangrijk dat de aanwezigen in het plangebied worden geïnformeerd hoe te handelen bij een incident. Dit zal plaatsvinden middels het WAS en NL-alert. Bij het genoemde incidentscenario is het advies om te schuilen in een gebouw, waarvan ramen, deuren en ventilatie gesloten kunnen worden.

De bewoners zijn zelf verminderd zelfredzaam. Daarentegen is er 24 uur per dag verzorgend personeel aanwezig. Het is wenselijk dat het personeel bekend is met eventuele rampscenario's en weet hoe te handelen in geval van een calamiteit.
Zoals aangegeven is er 8 tot 20 minuten tijd tussen een calamiteit en een eventuele bleve. In deze periode kunnen personen voldoende afstand nemen door het invloedsgebied te verlaten of een schuilplaats op te zoeken.
 
ad c.   Tijdens de procedure van het bestemmingsplan is de veiligheidsregio om advies gevraagd.

De brandweer heeft hierin aangegeven dat met 60 meter slang achter in het pand gekomen kan worden (ca. 20 meter tot de ingang nabij de trap en 40 meter inzetdiepte). Dit moet volstaan voor bereikbaarheid. Wel zou een opstelplaats aan de voorzijde eveneens aan te bevelen zijn, maar aangezien dit een voor voertuigen toegankelijke route betreft zal dit geen probleem zijn.  
5.1.4.3 Conclusie

Het aspect externe veiligheid vormt geen planologische belemmering voor het plan.

5.1.5 Geluid
5.1.5.1 Inleiding

Ruimtelijke ontwikkelingen moeten voldoen aan de regelgeving inzake geluidhinder. In de Wet geluidhinder (Wgh) wordt onderscheid gemaakt in verkeerslawaai en industrielawaai. In de Wgh zijn normen voor maximaal toelaatbare geluidsbelasting op (de gevels van) geluidgevoelige objecten vastgelegd.

5.1.5.2 Analyse

Het plan omvat nieuwe geluidgevoelige objecten.

Verkeerslawaai
Het plangebied ligt binnen de onderzoekszone van diverse wegen en spoorwegen. Om de gevelbelasting van de nieuwe woningen inzichtelijk te maken heeft Cauberg Huygen uit Son een akoestisch onderzoek uitgevoerd: rapport "Gogelstraat 3 te Vught; akoestisch onderzoek weg- en railverkeer" (29 januari 2020, nr. 05091-48046-05). Het onderzoeksrapport is als bijlage 5 bijgevoegd.

Cauberg Huygen concludeert het volgende:

  • De berekeningen laten zien dat ten gevolge van het wegverkeer op de Rijksweg A65/N65 de voorkeursgrenswaarde (van 48 dB) niet wordt overschreden. De maximaal berekende geluidbelasting bedraagt 48 dB.
  • De berekeningen laten zien dat ten gevolge van het wegverkeer op de Helvoirtseweg de voorkeursgrenswaarde (van 48 dB) niet wordt overschreden. De maximaal berekende geluidbelasting bedraagt 48 dB.
  • Ten gevolge van het railverkeer op traject 700/770 wordt de voorkeursgrenswaarde (van 55 dB) overschreden. De maximaal berekende geluidbelasting bedraagt 58 dB, waarmee de maximaal te ontheffen waarde ten gevolge van het railverkeer niet wordt overschreden. Er dient een hogere waarde procedure te worden doorlopen.

De hogere waarde procedure loopt parallel aan de bestemmingsplanprocedure.

Industrielawaai
Het plangebied ligt niet binnen een geluidszone van een gezoneerd industrieterrein. Er is geen akoestisch onderzoek nodig.

5.1.5.3 Conclusie

Het aspect geluid vormt geen planologische belemmering voor het plan.

5.1.6 Luchtkwaliteit
5.1.6.1 Inleiding

Om personen tegen de gevolgen van luchtverontreiniging te beschermen zijn in de Wet milieubeheer normen opgenomen voor bepaalde stoffen. Bij de beoordeling van het aspect luchtkwaliteit moet enerzijds aangetoond worden dat een ruimtelijke ontwikkeling niet leidt tot een (significante) overschrijding van de luchtkwaliteitsnormen en anderzijds dat ter plaatse van het plangebied sprake is van een goed woon- en leefklimaat.

5.1.6.2 Analyse

Effecten plan op luchtkwaliteit
In de "Regeling niet in betekenende mate bijdragen (luchtkwaliteitseisen)" zijn categorieën van gevallen genoemd die niet in betekenende mate bijdragen aan de concentratie van fijnstof in de buitenlucht. Zo is een project met maximaal 1.500 woningen (netto) bij minimaal 1 ontsluitingsweg één van de genoemde gevallen.

Onderhavig plan omvat 19 wooneenheden en 2 aanleunwoningen en betreft daarmee een project dat niet in betekenende mate bijdraagt aan de concentratie van fijnstof in de buitenlucht. Er is geen nader onderzoek nodig.

Goed woon- en leefklimaat

In de Wet milieubeheer zijn voor een groot aantal stoffen grenswaarden opgenomen, maar uit onderzoek blijkt dat langs wegen alleen overschrijdingen van de grenswaarden voor fijnstof (PM10) en stikstofdioxide (NO2) kunnen optreden. Voor de overige stoffen waarvoor grenswaarden zijn opgenomen in de Wm treden naar verwachting nergens langs het Nederlandse wegennet overschrijdingen van deze grenswaarden op. Voor de beoordeling van de luchtkwaliteit zijn daarom alleen de volgende criteria van toepassing:

  • 40 µg/m3 jaargemiddelde concentratie NO2;
  • 40 µg/m3 jaargemiddelde concentratie PM10;
  • 25 µg/m3 jaargemiddelde concentratie PM2,5;
  • 35 overschrijdingsdagen per jaar van de gemiddelde concentratie PM10.

Het plan ligt niet in de nabijheid van zware industrie, (een concentratie van meerdere) intensieve veehouderijen of drukke vaarwegen. Voor de beoordeling van de luchtkwaliteit wordt alleen gekeken naar luchtverontreiniging van verkeer op wegen in de omgeving.

In het kader van het NSL (Nationaal Samenwerkingsprogramma Luchtkwaliteit) is door diverse bronbeheerders zoals gemeenten, provincies en Rijkswaterstaat de Monitoringstool ingevoerd. Uit de resultaten van de Monitoringstool blijkt dat op deze locatie in de jaren 2018, 2020 en 2030 aan bovengenoemde grenswaarden (jaargemiddelde en overschrijdingsdagen) voor PM10 en NO2 wordt voldaan.

Onderstaande afbeelding geven de resultaten van de monitoringstool voor de stoffen PM10 en NO2 voor de jaren 2018, 2020 en 2030 weer.

afbeelding "i_NL.IMRO.0865.vghBPGogelstr3-VG01_0010.jpg" UITSNEDE MONITORINGSTOOL

Uit de monitoringstool volgt dat sprake is van een goed woon- en leefklimaat ter plaatse van het plangebied.

5.1.6.3 Conclusie

Het aspect luchtkwaliteit vormt geen planologische belemmering voor het plan.

5.1.7 Milieueffectrapportage
5.1.7.1 Inleiding

Het instrument milieueffectrapportage (m.e.r.) is ontwikkeld om het milieubelang volwaardig in de besluitvorming te betrekken. In de bijlage bij het Besluit milieueffectrapportage zijn de activiteiten genoemd waarvoor een m.e.r.-plicht of een m.e.r.-beoordelingsplicht geldt, of waarvoor een vormvrije m.e.r.-beoordeling nodig is.

5.1.7.2 Analyse

De in voorliggend bestemmingsplan opgenomen ontwikkelingen behoren niet tot de in bijlage D van het Besluit milieueffectrapportage genoemde ontwikkelingen. Er is derhalve geen nadere m.e.r.-beoordeling nodig.

Gelet op de resultaten van de hiervoor reeds uitgevoerde milieuanalyse, kan zonder nader onderzoek worden geconcludeerd dat het plan geen significant nadelige milieugevolgen heeft. Een nadere motivering is niet noodzakelijk.

5.1.7.3 Conclusie

Het plan is niet m.e.r.(-beoordelings)plichtig. Het plan heeft geen belangrijke nadelige milieugevolgen.

5.2 Waarden

5.2.1 Archeologie
5.2.1.1 Inleiding

Conform het bepaalde in artikel 3.1.6 Bro moet bij ruimtelijke ontwikkelingen rekening gehouden worden met de in de grond aanwezige dan wel te verwachten archeologische monumenten.

5.2.1.2 Analyse

De gemeente Vught heeft een kaart met archeologische verwachtingswaarden vastgesteld, maar heeft daar (nog) geen beleid aan gekoppeld. Op de kaart is het plangebied aangemerkt als gebied met een hoge archeologische waarde.

Omdat een groot deel van het plangebied thans reeds bebouwd is, waardoor de bodem is geroerd, is de kans op het daadwerkelijk aantreffen van archeologische bodemvondsten klein, maar niet volledig uit te sluiten. De mogelijk aanwezige archeologische waarden zijn in voorliggend bestemmingsplan beschermd door de dubbelbestemming 'Waarde - Archeologie', die het uitvoeren van een archeologisch onderzoek verplicht voorafgaand aan bodemingrepen dieper dan 30 cm over een oppervlakte van meer dan 100 m².

5.2.1.3 Conclusie

Het aspect archeologie vormt geen planologische belemmering voor het plan.

5.2.2 Cultuurhistorie
5.2.2.1 Inleiding

Conform het bepaalde in artikel 3.1.6 Bro moet bij ruimtelijke ontwikkelingen rekening gehouden worden met de aanwezige cultuurhistorische waarden.

5.2.2.2 Analyse

Het karakteristieke jaren '30 gebouw aan de voorzijde van het perceel blijft behouden. Hierdoor blijft het stedenbouwkundige beeld van de wijk behouden voor de toekomst. Het initiatief tast geen waardevolle elementen aan.

5.2.2.3 Conclusie

Onderhavig planvoornemen, waarbij het karakteristieke jaren '30 gebouw aan de voorzijde van het perceel behouden blijft, zorgt voor een meerwaarde voor de planvorming. Het aspect cultuurhistorie vormt hierdoor geen planologische belemmering voor het plan.

5.2.3 Natuurwaarden
5.2.3.1 Inleiding

Ten behoeve van de bescherming van natuurwaarden geldt de Wet natuurbescherming. De daarin opgenomen bescherming omvat de onderdelen:

  • gebiedsbescherming;
  • soortenbescherming;
  • bescherming van houtopstanden.
5.2.3.2 Analyse

Gebiedsbescherming
Het plangebied ligt niet binnen een beschermd gebied, zoals opgenomen in Natura 2000 en het Natuurnetwerk Brabant.

Ook bij ontwikkelingen buiten natuurgebieden moet het effect worden beoordeeld, de zogenaamde 'externe werking'. Het gaat dan met name om stikstofdepositie. Conform de Wet natuurbescherming mag de stikstofdepositie namelijk niet toenemen. Er geldt dan ook een grenswaarde van 0,00 mol/hectare/jaar.
Om de effecten van onderhavig plan op de omliggende Natura 2000-gebieden te bepalen is een stikstofdepositie-onderzoek uitgevoerd. Het onderzoeksrapport is als bijlage 6 bijgevoegd. Uit het onderzoek volgt dat zowel in de bouwfase als in de gebruiksfase wordt voldaan aan de genoemde grenswaarde. Er is dan ook geen ontheffing in het kader van de Wet natuurbescherming nodig.

Soortenbescherming
De beoordeling van het plan ten aanzien van de soortenbescherming is uitgevoerd door Staro Natuur en buitengebied uit Gemert: rapport “Toets flora en fauna Gogelstraat 3 te Vught” (14 januari 2018, nr. 18-0439). Het onderzoeksrapport is als bijlage 7 bijgevoegd. In het onderzoeksrapport doet Staro de volgende aanbevelingen om te voldoen aan de Wet natuurbescherming:

  • 1. Het verwijderen van bomen en struiken in het plangebied wordt uitgevoerd buiten het broedseizoen van vogels, dat globaal loopt van half maart tot en met juli.
  • 2. Het plangebied wordt mogelijk door Alpenwatersalamander gebruikt als land- en overwinteringshabitat. Het verwijderen van begroeiing en het uitvoeren van graafwerkzaamheden moet plaatsvinden in de periode buiten de overwinteringsperiode van deze soorten, die duurt van 1 november tot 15 maart.
  • 3. Nader onderzoek naar de aanwezigheid van gierzwaluwen wordt uitgevoerd gedurende de periode begin juni tot half juli om te bepalen of daadwerkelijk verblijfplaatsen aanwezig zijn. Indien uit het nader onderzoek blijkt dat nesten van gierzwaluw aanwezig zijn, dan is het aanvragen van een ontheffing van de Wet natuurbescherming en het nemen van mitigerende maatregelen noodzakelijk.
  • 4. Nader onderzoek naar gebouwbewonende vleermuissoorten wordt uitgevoerd gedurende de periode 15 mei t/m 30 september om het eventueel aantasten van verblijfplaatsen te kunnen uitsluiten. Indien een verblijfplaats aanwezig is, is het noodzakelijk een ontheffing van de Wet natuurbescherming aan te vragen en mitigerende maatregelen te treffen.

Uit de voornoemde toets volgt dat er vervolgonderzoek nodig is naar gebouwbewonende vleermuissoorten en gierzwaluw. Staro Natuur en buitengebied heeft dit onderzoek gedurende voorjaar en zomer van 2019 uitgevoerd. De resultaten zijn vastgelegd in het onderzoeksrapport "Resultaten onderzoek vleermuizen en gierzwaluw Gogelstraat 3 te Vught" (24 oktober 2019, nr. P19-0051) dat als bijlage 8 is bijgevoegd. Daaruit volgt dat er in het gebouw geen verblijfplaatsen van vleermuizen en geen gierzwaluwnesten zijn aangetroffen.

Met deze onderzoeksresultaten is voldoende onderzocht en zijn er geen belemmeringen voor de uitvoering van het plan.

Tot slot wordt opgemerkt dat de zorgplicht als genoemd in artikel 1.11 van de Wet natuurbescherming te allen tijde van toepassing is.

Bescherming van houtopstanden
Het plan omvat niet het kappen van bomen buiten de bebouwde kom of in een houtopstand van meer dan 10 are, of het kappen van een bomenrij van meer dan 20 bomen. Er is derhalve geen herplantplicht conform artikel 4.3 van de Wet natuurbescherming.

5.2.3.3 Conclusie

Het aspect natuurwaarden vormt geen planologische belemmering voor het plan.

5.3 Waterparagraaf

5.3.1 Inleiding

Het plangebied ligt binnen het beheergebied van Waterschap De Dommel

De watertoets is het hele proces van vroegtijdig informeren, adviseren, afwegen en uiteindelijk beoordelen van waterhuishoudkundige aspecten in ruimtelijke plannen en besluiten. Het doel van de watertoets is dat de waterbelangen evenwichtig worden meegewogen bij de totstandkoming van een plan. Deze waterparagraaf is een onderdeel van de watertoets.

De waterparagraaf beschrijft zowel de huidige als toekomstige waterhuishoudkundige situatie (oppervlaktewater, grondwater, hemelwater en afvalwater).

5.3.2 Beleid
5.3.2.1 Nationaal niveau
  • Het Nationaal Waterplan
    Dit plan geeft op hoofdlijnen aan welk beleid het Rijk in de periode 2016-2021 voert om te komen tot een duurzaam waterbeheer. Het Nationaal Waterplan richt zich op bescherming tegen overstromingen, voldoende en schoon water en diverse vormen van gebruik van water. Op basis van de Wet ruimtelijke ordening heeft het Nationaal Waterplan voor de ruimtelijke aspecten de status van structuurvisie.
5.3.2.2 Provinciaal niveau
  • Het Provinciaal Waterplan Noord-Brabant 2016-2021
    Dit plan bevat het strategische waterbeleid van de provincie Noord-Brabant voor de periode 2016-2021. Naast beleidskader is het Provinciaal Waterplan ook toetsingskader voor de taakuitoefening van lagere overheden op het gebied van water. Bovendien dient het plan als structuurvisie voor het aspect water op grond van de Wet ruimtelijke ordening.
5.3.2.3 Gemeente Vught

Het gemeentelijk water- en rioleringsbeleid is vastgelegd in het Gemeentelijk Rioleringsplan 2018-2023, dat op 22 augustus 2017 door de gemeenteraad is vastgesteld.

Gescheiden riolering in Vught
In totaal ligt in de gemeente ruim 200 kilometer vrijvervalriolering (vuil- en hemelwaterriolen). Nagenoeg overal ligt naast het vuilwaterriool ook een hemelwaterriool, behoudens een incidentele straat en delen van de 'Villawijk' waar alleen een vuilwaterriool ligt. In de gemeente Vught ligt nergens een gemengde riolering. Afvalwaterstromen moeten gescheiden blijven. Het is niet toegestaan hemelwater en afvalwater gemengd af te voeren. Dit geldt zowel voor het stedelijk gebied als voor het buitengebied. Hemelwater mag niet op het vuilwaterriool worden geloosd.

Hemelwater
Hemelwater moet op een verstandige wijze worden behandeld bij nieuwe ruimtelijke ontwikkelingen. Met behulp van de afvoernormen kan de benodigde waterberging en/of retentievoorziening worden berekend. Conform de landelijke uitgangspunten is de voorkeursvolgorde voor de te treffen compenserende maatregel: vasthouden - bergen - afvoeren. Op eigen terrein vasthouden en bergen (infiltreren) heeft de voorkeur. In eerste instantie is de perceeleigenaar zelf verantwoordelijk voor de verwerking op zijn/haar terrein. De zorg voor het verwerken van schoon hemelwater rust (in elk geval) op de perceeleigenaar.

5.3.2.4 Waterschap De Dommel

Onderhavig plangebied ligt binnen het beheergebied van het Waterschap De Dommel. Het waterschapsbeleid is onder meer beschreven in:

  • Het Waterbeheerplan 2016-2021
    Het waterbeheerplan 'Waardevol Water' is een strategisch document. Hierin wordt aangegeven wat de doelen zijn voor de periode 2016-2021 en hoe het waterschap dit wil bereiken. Het plan is afgestemd op het Stroomgebiedsbeheerplan Maas, het Nationaal Waterplan en het Provinciaal Waterplan. Dit waterbeheerplan beschrijft de doelen en inspanningen van Waterschap De Dommel voor de periode 2016-2021.
  • Brabant Keur
    Voor de beheergebieden van de waterschappen Aa en Maas, Brabantse Delta en De Dommel geldt dezelfde keur: Brabant Keur. De keur bevat regels ter bescherming van de waterwerken die nodig zijn voor een goed waterbeheer (kwantiteit) en voor de bescherming van het gebied tegen hoog water.
    Bij veel projecten is sprake van een toename van het verharde oppervlak. Hieromtrent is in de Algemene regels bij de keur het volgende opgenomen:
    • 1. Bij een toename van het verharde oppervlak van minder dan 2000 m² stelt het waterschap geen nadere eisen aan de verwerking van het hemelwater. Hiervoor geldt het gemeentelijke beleid;
    • 2. Bij een toename van het verharde oppervlak van meer dan 2000 m² maar minder dan 10.000 m² moeten compenserende maatregelen ten aanzien van de verwerking van het hemelwater worden getroffen conform de rekenregel:
      benodigde compensatie (in m³) =
      toename verhard oppervlak (in m²) x gevoeligheidsfactor x 0,06 (in m);  
    • 3. Bij een toename van het verhard oppervlak van meer dan 10.000 m² is een watervergunning nodig.
  • De notitie Ontwikkelen met duurzaam wateroogmerk
    De beleidsnotitie 'Ontwikkelen met duurzaam wateroogmerk’ maakt inzichtelijk welke hydrologische consequentie(s) ruimtelijke ontwikkelingen kunnen hebben op het watersysteem. Het bevat beleidsuitgangspunten, voorwaarden en normen om de negatieve hydrologische consequenties te compenseren. Tevens zijn de navolgende toetsaspecten opgenomen:
    • 1. afvoer uit het gebied;
    • 2. oppervlaktewaterstanden;
    • 3. overlast/schade;
    • 4. grondwateraanvulling;
    • 5. grondwaterstanden.
5.3.3 Watersysteem
5.3.3.1 Bodem

Er heeft geen specifiek onderzoek plaatsgevonden naar de infiltratiecapaciteit van de bodem. Uit de kaart 'Gevoeligheidsfactoren' van het waterschap volgt dat waterdoorlatendheid ter plaatse redelijk goed is.

5.3.3.2 Oppervlaktewater

Binnen het plangebied en in de directe omgeving is geen oppervlaktewater aanwezig en wordt geen oppervlaktewater aangelegd.

5.3.3.3 Grondwater

Er zijn geen gegevens over de gemiddeld hoogste grondwaterstand beschikbaar.

5.3.3.4 Waterschapsbelangen

Het plangebied ligt niet in of nabij een gebied waarin waterschapsbelangen een rol spelen, zoals waterkering, waterberging of waterwinning.

De verharde oppervlakte van het plangebied bedraagt minder dan 2.000 m², waardoor het waterschap geen nadere eisen stelt aan de verwerking van het hemelwater.

5.3.4 Hemelwater
5.3.4.1 Verhard oppervlak

Onderstaande tabel geeft een overzicht van het verhard oppervlak in de huidige en nieuwe situatie. Daarbij wordt in de nieuwe situatie in de halfverharding toegepast, waarbij de 8 parkeerplaatsen die aan de zuidzijde tegen het gebouw gesitueerd zijn met grasstenen worden verhard. De parkeerplaatsen mogen hierdoor voor de helft bij het verhard terrein en voor de helft bij het onverhard terrein worden meegerekend.

type verharding   bestaand   plan  
gebouw   1.130 m²   887 m²  
verhard terrein   164 m²   404 m²  
halfverhard terrein   500 m²   503 m²  
totaal   1.794 m²   1.794 m²  

De oppervlakte van gebouw en verhard terrein blijft ongeveer gelijk.

5.3.4.2 Berekening bergingsopgave

Zowel in de bestaande als nieuwe situatie bedraagt de oppervlakte van gebouw en terreinverharding ongeveer 1.300 m². Conform de eerder genoemde rekenregel moet rekening gehouden worden met een bergingsopgave van (1300 x 1 x 0,06 =) 78 m³.

5.3.4.3 Verwerking hemelwater

Zoals aangegeven beschikt de gemeente Vught over een gescheiden stelsel in het gehele grondgebied. In de bestaande situatie stroomt het hemelwater vanaf de daken en verharde oppervlakken af naar het hemelwaterdeel van dat rioolstelsel.
In de toekomstige situatie blijft dit onveranderd. Dus is onderhavig planvoornemen mogelijk doordat de bergingsopgave niet toeneemt ten opzichte van de bestaande situatie.

5.3.5 Afvalwater

Uitgangspunt is dat het vuile afvalwater en het schone hemelwater worden gescheiden.

Het vuile afvalwater zal op de bestaande riolering in de Gogelstraat geloosd worden.

5.3.6 Waterkwaliteit

Er zijn geen bijzondere maatregelen genomen om vervuiling van het oppervlaktewater te voorkomen. Overeenkomstig de eis van het waterschap worden geen uitlogende materialen toegepast.

Hoofdstuk 6 Economische uitvoerbaarheid

De economische uitvoerbaarheid van een ruimtelijke ontwikkeling betreft twee aspecten. Ten eerste moet het realiteitsgehalte van de plannen worden aangetoond: is er behoefte aan de voorgenomen ontwikkeling. Ten tweede moet de financiële uitvoerbaarheid worden onderbouwd: zijn alle kosten die de gemeente moet maken ten behoeve van het initiatief gedekt.

6.1 Kostenverhaal

In artikel 6.2.1 van het Besluit ruimtelijke ordening (Bro) zijn de bouwactiviteiten genoemd waarvoor het vaststellen van een exploitatieplan verplicht is. De in voorliggend bestemmingsplan opgenomen ontwikkelingen behoren tot deze in het Bro genoemde bouwactiviteiten. Op basis van artikel 6.12 lid 2a Wro is het vaststellen van een exploitatieplan echter niet verplicht, omdat de gemeente en grondeigenaar/grondeigenaren een (anterieure) overeenkomst hebben gesloten, waarin afspraken zijn gemaakt over het kostenverhaal. Het kostenverhaal is derhalve 'anderszins verzekerd'. Het opstellen van een exploitatieplan is niet vereist.

6.2 Gemeentelijke grondexploitatie

De gemeente heeft geen gronden in het plangebied in eigendom. Alle kosten en risico's van de planontwikkeling, -voorbereiding en -uitvoering zijn voor rekening van de initiatiefnemer. De gemeentelijke grondexploitatie wordt dus niet belast door voorliggend ruimtelijk plan. De financiële uitvoerbaarheid van het plan is hiermee aangetoond.

Hoofdstuk 7 Juridische aspecten

7.1 Algemeen

In dit hoofdstuk wordt toegelicht op welke wijze het plan juridisch is vertaald. Deze juridische vertaling is bindend.

Het bestemmingsplan bestaat uit:

  • de toelichting;
  • de planregels;
  • de verbeelding.

De toelichting heeft geen juridisch bindende werking. De toelichting heeft wel een belangrijke functie voor de onderbouwing van het plan en ook bij de verklaring van de bestemmingen en planregels, en in het bijzonder ten aanzien van de regels inzake nadere eisen en afwijkingen.

De planregels vormen de juridische regels voor gebruik van de gronden, de toegelaten bebouwing en het gebruik van aanwezige en/of op te richten bouwwerken.

De verbeelding geeft de geografische ligging van de bestemmingen en aanduidingen weer. De verbeelding vormt samen met de planregels het juridisch bindende deel van het bestemmingsplan.

Het bestemmingsplan voldoet aan de Regeling standaarden ruimtelijke ordening 2012.

7.2 Planregels

De indeling van de planregels is als volgt.

Hoofdstuk 1 Inleidende regels

Hoofdstuk 2 Bestemmingsregels

Hoofdstuk 3 Algemene regels

Hoofdstuk 4 Overgangsregels

Hoofdstuk 1 Inleidende regels

Begrippen (artikel 1)
In dit artikel zijn de begrippen die in de planregels worden gehanteerd gedefinieerd. Bij de toetsing aan het bestemmingsplan moet worden uitgegaan van de in dit artikel aan de betreffende begrippen toegekende betekenis.

Wijze van meten (artikel 2)
In dit artikel is aangegeven hoe de hoogte en andere maten, die bij het bouwen in acht genomen dienen te worden, gemeten moeten worden.

Hoofdstuk 2 Bestemmingsregels

Maatschappelijk (artikel 3)

Het gehele plangebied is in de bestemming 'Maatschappelijk' vervat, omdat de woonzorgvoorziening is bedoeld voor mensen die niet meer zelfstandig kunnen wonen. De woonzorgvoorziening heeft maximaal 19 woonzorgeenheden en 2 aanleunwoningen. Ter plaatse van de functie-aanduiding wonen zijn 2 aanleunwoningen mogelijk.

Waarde - Archeologie (artikel 4)
Ter bescherming van mogelijk voorkomende archeologische waarden is een dubbelbestemming opgenomen die de uitvoer van een archeologisch onderzoek voorafgaand aan bodemingrepen verplicht.

Hoofdstuk 3 Algemene regels

Anti-dubbeltelregel (artikel 5)
In dit artikel is bepaald dat gronden, die al eens als berekeningsgrondslag voor bouwen hebben gediend, niet nogmaals als zodanig kunnen dienen.

Algemene bouwregels (artikel 6)
Dit artikel bevat regels ten aanzien van afwijkende bestaande bebouwing en ondergeschikte bouwdelen. Dit artikel bevat tevens de verplichting tot het voorzien in voldoende parkeergelegenheid, waarbij een verwijzing is opgenomen naar het vigerende "Paraplubestemmingsplan Parkeren". Voorts zijn er regels opgenomen voor voorzieningen van algemeen nut en het stellen van nadere eisen.

Algemene afwijkingsregels (artikel 7)
In dit artikel is een aantal algemene afwijkingsmogelijkheden opgenomen. Deze afwijkingen betreffen onder meer het overschrijden van de maximaal toegestane maten, afmetingen en percentages.

Algemene procedureregels (artikel 8)
Dit artikel bevat de procedureregels.

Hoofdstuk 4 Overgangs- en slotregels

Overgangsrecht (artikel 9)
Voor volgens de regels afwijkende bestaande bebouwing is voor de omvang, het onderhoud en de herbouw een overgangsregel opgenomen. Dit artikel bevat tevens een overgangsregel ten aanzien van het voortzetten van bestaand gebruik dat in strijd met het bestemmingsplan is.

Slotregel (artikel 10)
Hier wordt vermeld onder welke naam de regels van dit bestemmingsplan kunnen worden aangehaald.

Hoofdstuk 8 Procedure

Het bestemmingsplan doorloopt de gebruikelijke procedure. De voorziene procedurestappen zijn:

  • 1. Inspraak
  • 2. Overleg ex artikel 3.1.1 Bro
  • 3. Terinzagelegging ontwerpbestemmingsplan
  • 4. Vaststelling door gemeenteraad
  • 5. Terinzagelegging vastgesteld bestemmingsplan

8.1 Inspraak

Op grond van de gemeentelijke inspraakverordening heeft het voorontwerpbestemmingsplan vanaf 14 november 2019 tot en met 27 december 2019 ter inzage gelegen. In de Nota inspraak en vooroverleg zijn de inspraakreacties beantwoord. In deze nota is een totaaloverzicht van wijzigingen opgenomen die als gevolg van de inspraakreacties en ambtshalve zijn doorgevoerd. De Nota inspraak en vooroverleg is als bijlage 9 opgenomen.

8.2 Overleg ex artikel 3.1.1 Bro

In het kader van het overleg ex artikel 3.1.1 Bro is het voorontwerpbestemmingsplan toegezonden aan de betrokken instanties. Het waterschap De Dommel heeft advies uitgebracht. Dit advies en de gemeentelijke reactie is opgenomen in de Nota inspraak en vooroverleg die als bijlage 9 is opgenomen.

8.3 Terinzagelegging ontwerpbestemmingsplan

Het ontwerp van het bestemmingsplan vanaf 20 februari 2020 tot en met 1 april 2020 ter inzage gelegen. Het verslag van de terinzagelegging en de beantwoording van de ingekomen zienswijzen is opgenomen als bijlage 10.